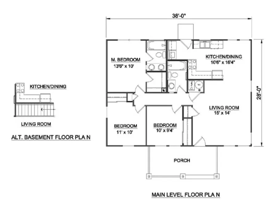
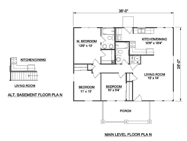
Plan No.368201
Features three bedrooms and two full baths. This cozy home welcomes visitors with an Old Fashioned Front Porch. The Country Kitchen has an a joining Mud/Laundry room is leading to the backyard. The Master Bedroom is complete with a walk-in-closet and private bath.
Specifications
Total 1067 sq ft
- Main: 1067
- Second: 0
- Third: 0
- Loft/Bonus: 0
- Basement: 0
- Garage: 0
Rooms
- Beds: 3
- Baths: 2
- 1/2 Bath: 0
- 3/4 Bath: 0
Ceiling Height
- Main: 8'0"
- Second:
- Third:
- Loft/Bonus:
- Basement:
- Garage:
Details
- Exterior Walls: 2x4
- Garage Type: singleGarage
- Width: 38'0"
- Depth: 28'0"
Roof
- Max Ridge Height: 19'0"
- Comments: ()
- Primary Pitch: 6/12
- Secondary Pitch: 0/12
Add to Cart
Pricing
Full Rendering – westhomeplanners.com
MAIN Plan – westhomeplanners.com
[Back to Search Results]

833–493–0942
