Plan No.363201
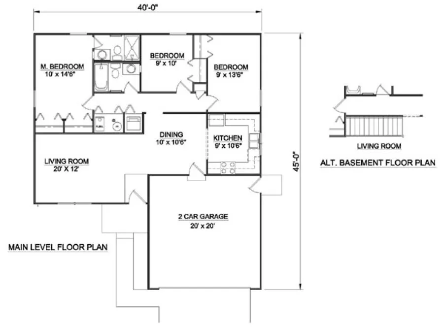
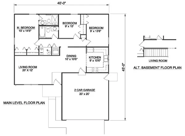
Features three bedrooms and two full baths. A Covered Porch leads into a Formal Living Room. The Dining Area ajoins the large U-shaped Kitchen. The Master Bedroom features twin closets and a full private bath. The laundry is conveniently located in the bedroom area.
Specifications
Total 1100 sq ft
- Main: 1100
- Second: 0
- Third: 0
- Loft/Bonus: 0
- Basement: 0
- Garage: 400
Rooms
- Beds: 3
- Baths: 2
- 1/2 Bath: 0
- 3/4 Bath: 0
Ceiling Height
- Main: 8'0"
- Second:
- Third:
- Loft/Bonus:
- Basement:
- Garage:
Details
- Exterior Walls: 2x4
- Garage Type: singleGarage
- Width: 40'0"
- Depth: 45'0"
Roof
- Max Ridge Height: 16'4"
- Comments: ()
- Primary Pitch: 5/12
- Secondary Pitch: 0/12
Add to Cart
Pricing
– westhomeplanners.com
– westhomeplanners.com
[Back to Search Results]

833–493–0942
