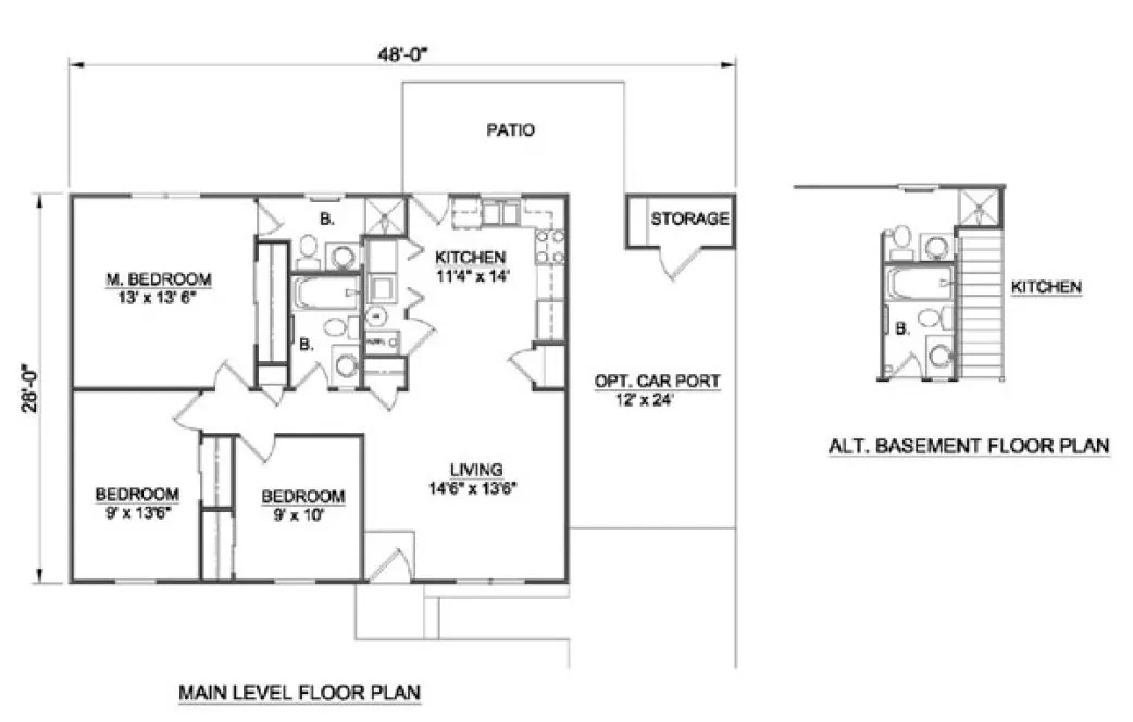
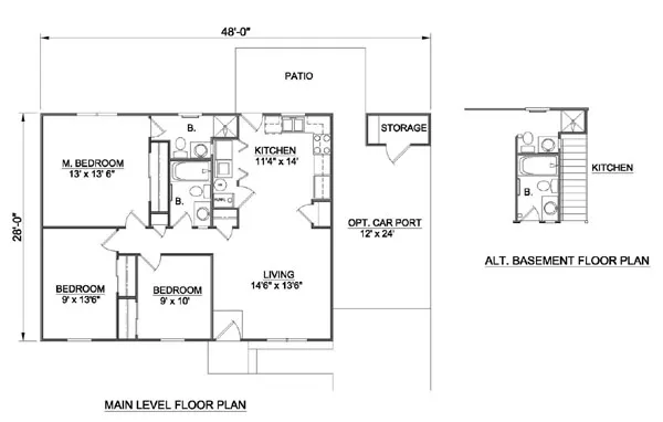
Plan No.360201
Features two bedrooms and two full baths. This home features an economical placement of rooms and plumbing fixtures. Carport may be included in original construction or added latter
Specifications
Total 1100 sq ft
- Main: 1100
- Second: 0
- Third: 0
- Loft/Bonus: 0
- Basement: 0
- Garage: 288
Rooms
- Beds: 3
- Baths: 2
- 1/2 Bath: 0
- 3/4 Bath: 0
Ceiling Height
- Main: 8'0"
- Second:
- Third:
- Loft/Bonus:
- Basement:
- Garage:
Details
- Exterior Walls: 2x4
- Garage Type: doubleGarage
- Width: 48'0"
- Depth: 28'0"
Roof
- Max Ridge Height: 16'0"
- Comments: ()
- Primary Pitch: 5/12
- Secondary Pitch: 0/12
Add to Cart
Pricing
– westhomeplanners.com
– westhomeplanners.com
[Back to Search Results]

833–493–0942
