Plan No.273171
Luxurious European
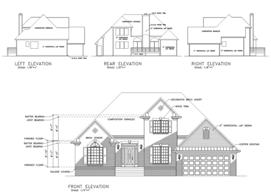
This luxurious new 1-1/2 story design is the culmination of many of today's most requested features. The appealing brick exterior is accented with multi-level wood trim and copper roofing returns. Thoughtful planning creates a spacious feel which seems to contradict it's compact 1774 square foot interior. This plan's drama is evident upon your first step inside. The foyer vaults to a ceiling height of 16'-10". To the right is an 11' x 15' dining room with a 4" raised floor surrounded by decorative columns. Just beyond the "bridge" is the 19' x 14' great room with a fireplace centered between two french door units with radius windows above. The master suite is vaulted and brightened by a 6' "Palladian" window. It includes a full-featured bath and a 6' x 11' closet. The roomy kitchen is lit by twin sky-lights. There's also a large laundry room and a pantry. Upstairs, accessed by the "bridge, are the two secondary bedrooms, measuring 10' x 11' and 12' x 12'.
Specifications
Total 1774 sq ft
- Main: 1334
- Second: 440
- Third: 0
- Loft/Bonus: 0
- Basement: 1334
- Garage: 400
Rooms
- Beds: 3
- Baths: 2
- 1/2 Bath: 1
- 3/4 Bath: 0
Ceiling Height
- Main: 8'10
- Second: 8'0
- Third:
- Loft/Bonus:
- Basement: 8'0
- Garage: 10'2
Details
- Exterior Walls: 2x4
- Garage Type: doubleGarage
- Width: 53'8
- Depth: 40'6
Roof
- Max Ridge Height: 34'0
- Comments: ()
- Primary Pitch: 12/12
- Secondary Pitch: 0/12

833–493–0942


