Plan No.271161
Generous Sunlight
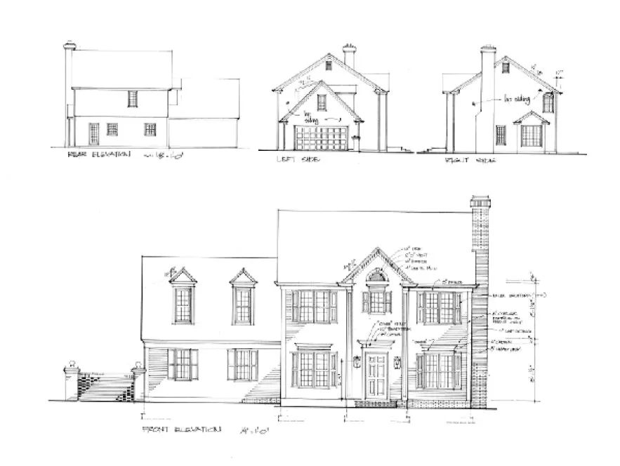
This traditional plan features 1,653 square feet of living space. The 12'x17' living room has a double window for generous sunlight and a fireplace. An angled corner leads to the kitchen which measures 18'x10' and has a large, sunny breakfast area. The 12'x12' dining room is conveniently placed for entertaining. Completing the lower level are a powder room and spacious laundry room. The upper level features an enormous 12'x19' master suite. The master bath features a separate tub and shower, two vanities and a roomy walk-in closet. Bedroom 2 is 12'x10' and has a walk-in closet. Bedroom 3 measures 11'x10'. A spacious 20'x14' bonus room can serve as a fourth bedroom.
Specifications
Total 1653 sq ft
- Main: 816
- Second: 837
- Third: 0
- Loft/Bonus: 0
- Basement: 0
- Garage: 420
Rooms
- Beds: 3
- Baths: 2
- 1/2 Bath: 1
- 3/4 Bath: 0
Ceiling Height
- Main: 8'0
- Second: 8'0
- Third:
- Loft/Bonus:
- Basement:
- Garage: 9'4
Details
- Exterior Walls: 2x4
- Garage Type: doubleGarage
- Width: 48'0
- Depth: 28'0
Roof
- Max Ridge Height: 27'0
- Comments: ()
- Primary Pitch: 8/12
- Secondary Pitch: 0/12
Add to Cart
Pricing
– westhomeplanners.com
– westhomeplanners.com
– westhomeplanners.com
– westhomeplanners.com
[Back to Search Results]

833–493–0942


