Plan No.273151
Distinctive Layout
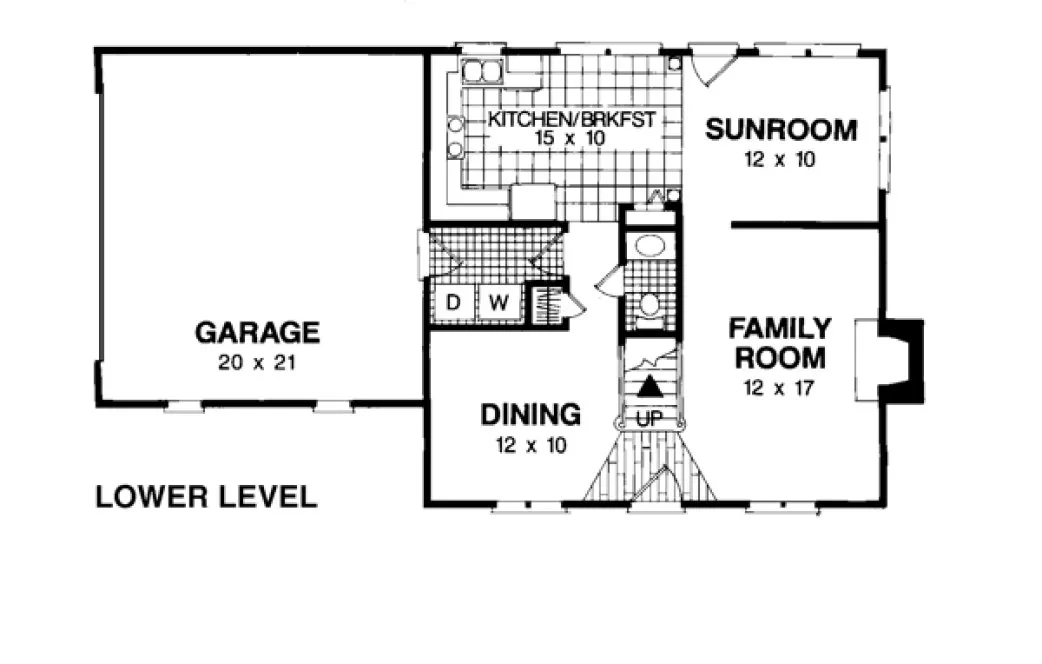
This attractive traditional plan features 1,595 square feet of living space. This distinctive layout welcomes friends and family into a comfortable 12'x17' family room accented by a brick fireplace. An unusual feature in a home this size is a bright and airy 12'x10' sunroom. Decorative columns provide a visual break between the large open 15'x10' kitchen and breakfast area and the sunroom. The 12'x10' dining room is conveniently placed for more formal entertaining. Completing the lower level are a powder room and roomy laundry room. The upper level features an enormous 12'x19' master suite with a tray ceiling. The master bath is highlighted by a corner tub and offers a separate shower, his and hers vanities, toilet compartment, and a large walk-in closet. Bedrooms 2 and 3, measuring 12'x10' and 11'x10' respectively, share a hall bath. A spacious 20'x13' bonus room can serve as a fourth bedroom.
Specifications
Total 1595 sq ft
- Main: 784
- Second: 811
- Third: 0
- Loft/Bonus: 0
- Basement: 0
- Garage: 420
Rooms
- Beds: 3
- Baths: 2
- 1/2 Bath: 1
- 3/4 Bath: 0
Ceiling Height
- Main: 8'0
- Second: 8'0
- Third:
- Loft/Bonus:
- Basement:
- Garage: 9'4
Details
- Exterior Walls: 2x4
- Garage Type: doubleGarage
- Width: 48'0
- Depth: 28'0
Roof
- Max Ridge Height: 28'4
- Comments: ()
- Primary Pitch: 8/12
- Secondary Pitch: 0/12

833–493–0942

