Plan No.368129
Economy Bungalow
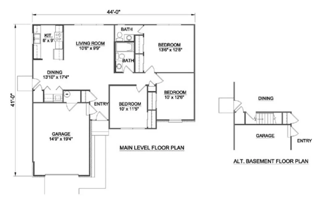
Features three bedrooms and an attached garage. The covered Entry leads to a rear Living Room. The efficient Kitchen connects to the Dining area. The Living Room flows into the Dining area creating an open feeling to the space. The Master Bedroom features a private bath. Two large bedrooms with ample sized closets share the full hall bath.
Specifications
Total 1104 sq ft
- Main: 1104
- Second: 0
- Third: 0
- Loft/Bonus: 0
- Basement: 0
- Garage: 0
Rooms
- Beds: 3
- Baths: 1
- 1/2 Bath: 1
- 3/4 Bath: 0
Ceiling Height
- Main: 8'0"
- Second:
- Third:
- Loft/Bonus:
- Basement:
- Garage:
Details
- Exterior Walls: 2x4
- Garage Type: doubleGarage
- Width: 44'0"
- Depth: 41'0"
Roof
- Max Ridge Height: 16'6"
- Comments: ()
- Primary Pitch: 6/12
- Secondary Pitch: 0/12
Add to Cart
Pricing
– westhomeplanners.com
– westhomeplanners.com
[Back to Search Results]

833–493–0942
