Plan No.369069
Sheltered Entry
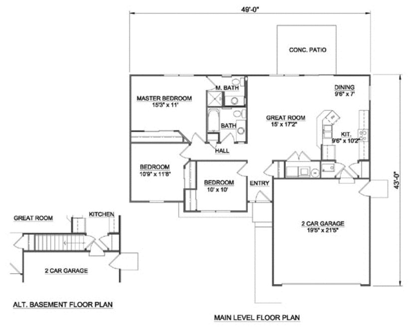
Features three bedrooms and two full baths. A sheltered entrance leads into an open Living Room with an optional corner fireplace and a wall of windows. The well-equipped Kitchen features a peninsula counter with a Nook, and a built-in pantry. The Master Bedroom is complete with a private bath and large Closet. Two additional bedrooms share full hall bath. A Cathedral sloped ceiling enhance the Great Room and Kitchen.
Specifications
Total 1175 sq ft
- Main: 1175
- Second: 0
- Third: 0
- Loft/Bonus: 0
- Basement: 1175
- Garage: 405
Rooms
- Beds: 3
- Baths: 2
- 1/2 Bath: 0
- 3/4 Bath: 0
Ceiling Height
- Main: 8'0
- Second:
- Third:
- Loft/Bonus:
- Basement: 8'0
- Garage:
Details
- Exterior Walls: 2x4
- Garage Type: doubleGarage
- Width: 48'0
- Depth: 43'0
Roof
- Max Ridge Height: 19'0
- Comments: ()
- Primary Pitch: 8/12
- Secondary Pitch: 0/12
Add to Cart
Pricing
– westhomeplanners.com
– westhomeplanners.com
[Back to Search Results]

833–493–0942
