Plan No.366001
Kitchen With Snack Bar
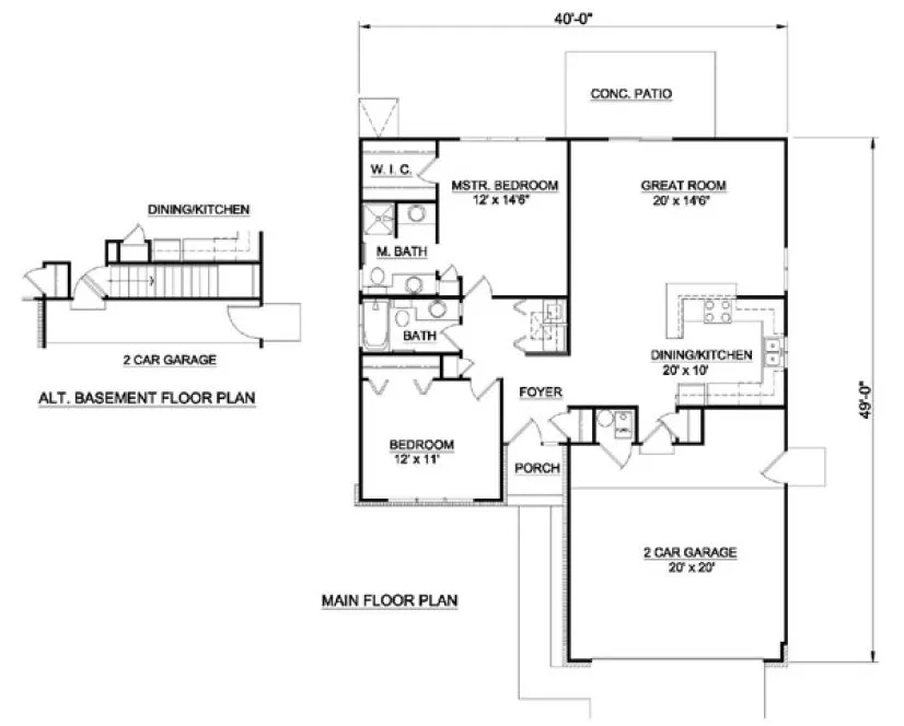
The large Great Room flows into the Dining area. A U-shaped Kitchen with wrap-around Snack bar overlooks the Great Room and Dining Area. The Laundry is conveniently located in the Bedroom wing. The spacious Master Bedroom is complete with a walk-in closet and private Bath
Specifications
Total 1158 sq ft
- Main: 1158
- Second: 0
- Third: 0
- Loft/Bonus: 0
- Basement: 0
- Garage: 400
Rooms
- Beds: 2
- Baths: 2
- 1/2 Bath: 0
- 3/4 Bath: 0
Ceiling Height
- Main: 8'0"
- Second:
- Third:
- Loft/Bonus:
- Basement:
- Garage:
Details
- Exterior Walls: 2x4
- Garage Type: doubleGarage
- Width: 40'0"
- Depth: 49'0"
Roof
- Max Ridge Height: 17'3"
- Comments: ()
- Primary Pitch: 6/12
- Secondary Pitch: 0/12
Add to Cart
Pricing
– westhomeplanners.com
– westhomeplanners.com
[Back to Search Results]

833–493–0942
