Plan No.274001
Attractive Ranch
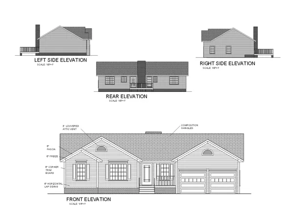
An inviting front porch highlights this attractive ranch. Perfect for homeowners with small children, this "bedroom-together" design is spacious, yet economical, at only 1069 heated square feet. Beyond the front porch is a 14'x20' vaulted family room with a fireplace and a dining area if desired. The corridor style kitchen leads to the breakfast room, with an optional bay window, and to the laundry area. The master bedroom measures a roomy 15'x11' and has a walk-in closet and private bath. The secondary bedrooms each measure 10'x10' and share a bath with a large 5' vanity.
Specifications
Total 1069 sq ft
- Main: 1069
- Second: 0
- Third: 0
- Loft/Bonus: 0
- Basement: 0
- Garage: 438
Rooms
- Beds: 3
- Baths: 2
- 1/2 Bath: 0
- 3/4 Bath: 0
Ceiling Height
- Main: 8'0
- Second:
- Third:
- Loft/Bonus:
- Basement:
- Garage: 9'4
Details
- Exterior Walls: 2x4
- Garage Type: doubleGarage
- Width: 55'0
- Depth: 31'6
Roof
- Max Ridge Height: 16'0
- Comments: ()
- Primary Pitch: 7/12
- Secondary Pitch: 0/12
Add to Cart
Pricing
Full Rendering – westhomeplanners.com
MAIN Plan – westhomeplanners.com
REAR Elevation – westhomeplanners.com
[Back to Search Results]

833–493–0942

