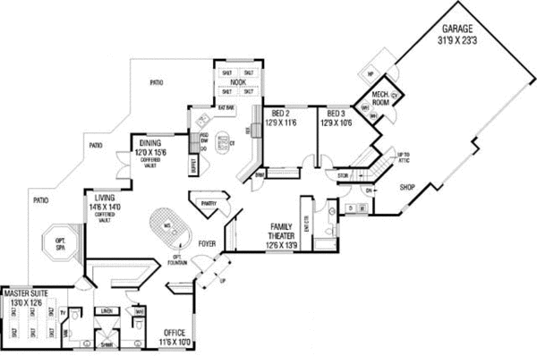
Plan No.164040
Unfinished attic bonus space is 597 sq. ft.
Specifications
Total 2485 sq ft
- Main: 2485
- Second: 0
- Third: 0
- Loft/Bonus: 0
- Basement: 0
- Garage: 966
Rooms
- Beds: 3
- Baths: 2
- 1/2 Bath: 1
- 3/4 Bath: 0
Ceiling Height
- Main: 8'0"
- Second:
- Third:
- Loft/Bonus:
- Basement:
- Garage: 9'4"
Details
- Exterior Walls: 2x6
- Garage Type: tripleGarage
- Width: 123'3"
- Depth: 55'9"
Roof
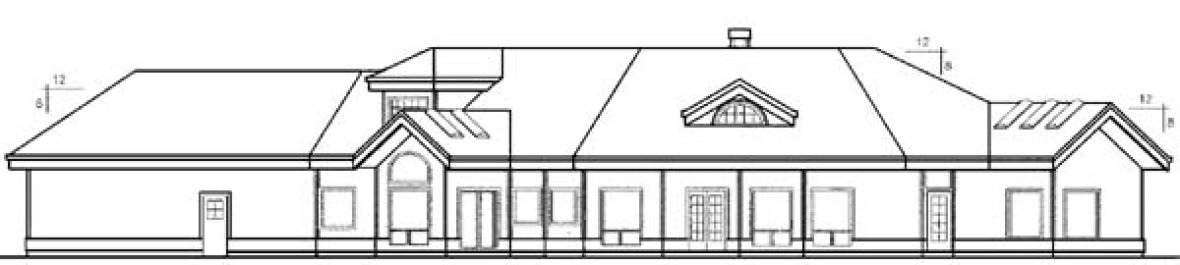
- Max Ridge Height: 22'6"
- Comments: ()
- Primary Pitch: 8/12
- Secondary Pitch: 0/12
Add to Cart
Pricing
Full Rendering – westhomeplanners.com
MAIN Plan – westhomeplanners.com
REAR Elevation – westhomeplanners.com
[Back to Search Results]

833–493–0942

