Plan No.169470
Specifications
Total 2484 sq ft
- Main: 1888
- Second: 596
- Third: 0
- Loft/Bonus: 0
- Basement: 0
- Garage: 832
Rooms
- Beds: 3
- Baths: 3
- 1/2 Bath: 0
- 3/4 Bath: 0
Ceiling Height
- Main: 9'0"
- Second: 8'0"
- Third:
- Loft/Bonus:
- Basement:
- Garage: 10'4"
Details
- Exterior Walls: 2x6
- Garage Type: doubleGarage
- Width: 88'0"
- Depth: 45'0"
Roof
- Max Ridge Height: 27'9"
- Comments: ()
- Primary Pitch: 10/12
- Secondary Pitch: 0/12
Add to Cart
Pricing
Full Rendering – westhomeplanners.com
MAIN Plan – westhomeplanners.com
SECOND Plan – westhomeplanners.com
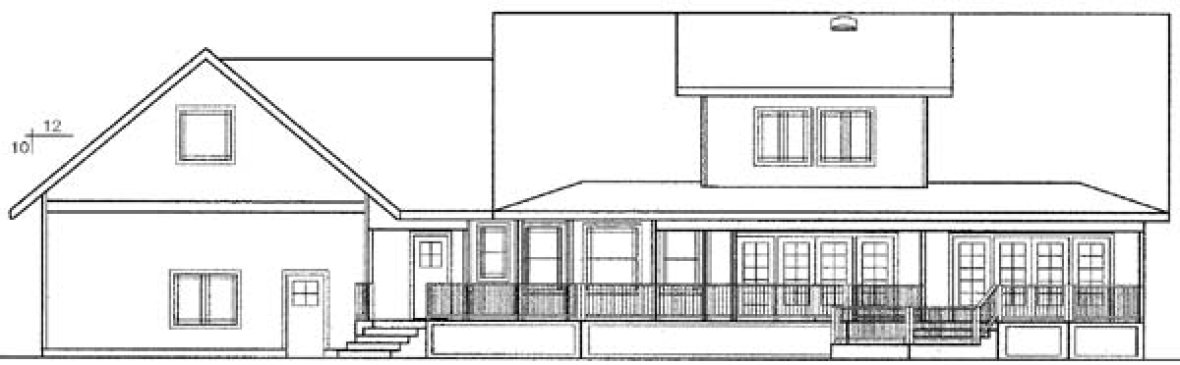
REAR Elevation – westhomeplanners.com
[Back to Search Results]

833–493–0942


