Plan No.115122
Private Courtyard
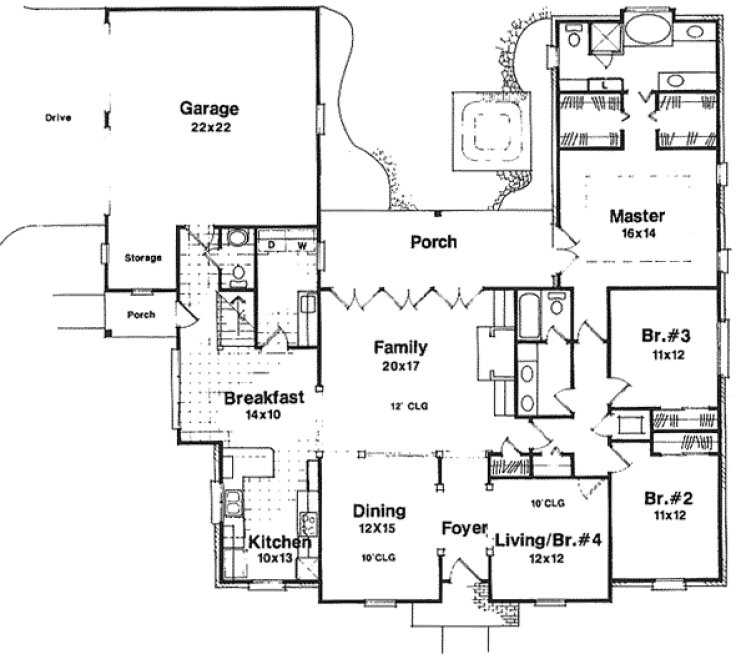
Specifications
Total 2215 sq ft
- Main: 2215
- Second: 0
- Third: 0
- Loft/Bonus: 253
- Basement: 0
- Garage: 491
Rooms
- Beds: 3
- Baths: 2
- 1/2 Bath: 1
- 3/4 Bath: 0
Ceiling Height
- Main: 9'0"
- Second:
- Third:
- Loft/Bonus: 8'0"
- Basement:
- Garage:
Details
- Exterior Walls: 2x4
- Garage Type: doubleGarage
- Width: 63'0"
- Depth: 61'0"
Roof
- Max Ridge Height: 25'8"
- Comments: ()
- Primary Pitch: 10/12
- Secondary Pitch: 0/12
Add to Cart
Pricing
– westhomeplanners.com
– westhomeplanners.com
– westhomeplanners.com
[Back to Search Results]

833–493–0942

