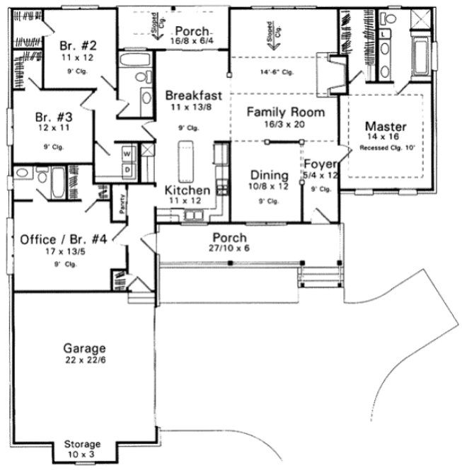
Plan No.118512
Rear Porch With Skylites
Specifications
Total 2158 sq ft
- Main: 2158
- Second: 0
- Third: 0
- Loft/Bonus: 0
- Basement: 0
- Garage: 520
Rooms
- Beds: 4
- Baths: 3
- 1/2 Bath: 0
- 3/4 Bath: 0
Ceiling Height
- Main: 9'0"
- Second:
- Third:
- Loft/Bonus:
- Basement:
- Garage:
Details
- Exterior Walls: 2x4
- Garage Type: doubleGarage
- Width: 65'1"
- Depth: 69'0"
Roof
- Max Ridge Height: 21'5"
- Comments: ()
- Primary Pitch: 8/12
- Secondary Pitch: 0/12
Add to Cart
Pricing
– westhomeplanners.com
– westhomeplanners.com
[Back to Search Results]

833–493–0942
