Plan No.200927
Welcoming Front Porch
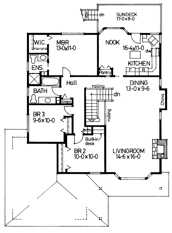
From the covered front porch, to the sundeck off the breakfast nook...this smart looking traditional home is well-provided with access to outdoor living space. As with all basement entry designs, we have suggested just one of the many finishing plans for right now or for future completion. The master suite is complete with shower and the plumbing is laid out for economy of construction. The large kitchen/nook combination features a bay window and center island work space.
Specifications
Total 1421 sq ft
- Main: 1318
- Second: 0
- Third: 0
- Loft/Bonus: 0
- Basement: 1221
- Garage: 430
Rooms
- Beds: 3
- Baths: 2
- 1/2 Bath: 0
- 3/4 Bath: 0
Ceiling Height
- Main: 8
- Second:
- Third:
- Loft/Bonus:
- Basement: 8'
- Garage: 8'4
Details
- Exterior Walls: 2x6
- Garage Type: doubleGarage
- Width: 40'
- Depth: 50'
Roof
- Max Ridge Height:
- Comments: ()
- Primary Pitch: 7/12
- Secondary Pitch: 0/12
Add to Cart
Pricing
Full Rendering – westhomeplanners.com
MAIN Plan – westhomeplanners.com
BASEMENT Plan – westhomeplanners.com
[Back to Search Results]

833–493–0942

