Plan No.168690
Specifications
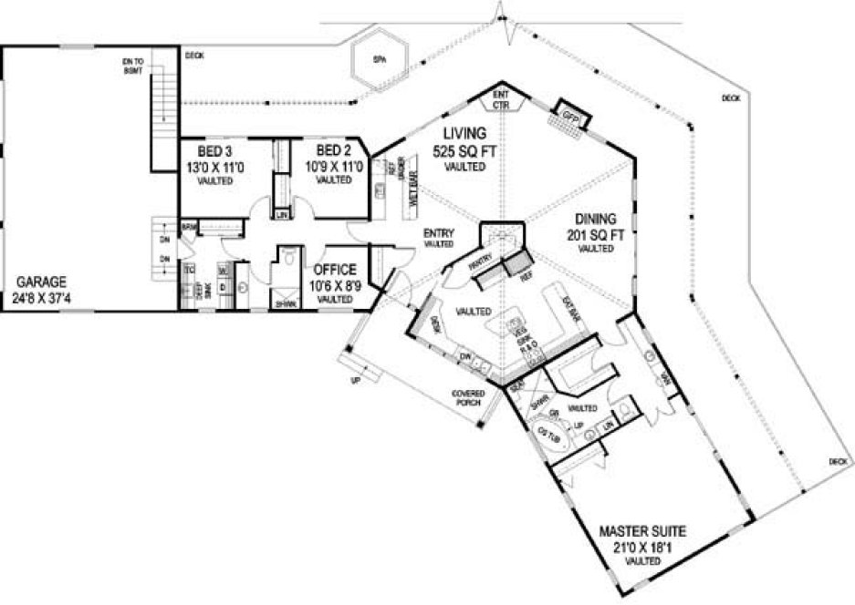
Total 2648 sq ft
- Main: 2648
- Second: 0
- Third: 0
- Loft/Bonus: 0
- Basement: 2618
- Garage: 969
Rooms
- Beds: 3
- Baths: 2
- 1/2 Bath: 0
- 3/4 Bath: 0
Ceiling Height
- Main: 10'0"
- Second:
- Third:
- Loft/Bonus:
- Basement: 8'0"
- Garage: 11'4"
Details
- Exterior Walls: 2x6
- Garage Type: tripleGarage
- Width: 107'3"
- Depth: 78'0"
Roof
- Max Ridge Height: 24'0"
- Comments: ()
- Primary Pitch: 7/12
- Secondary Pitch: 0/12
Add to Cart
Pricing
– westhomeplanners.com
– westhomeplanners.com
[Back to Search Results]

833–493–0942
