Plan No.195085
Stylish Multi-Family Dwelling
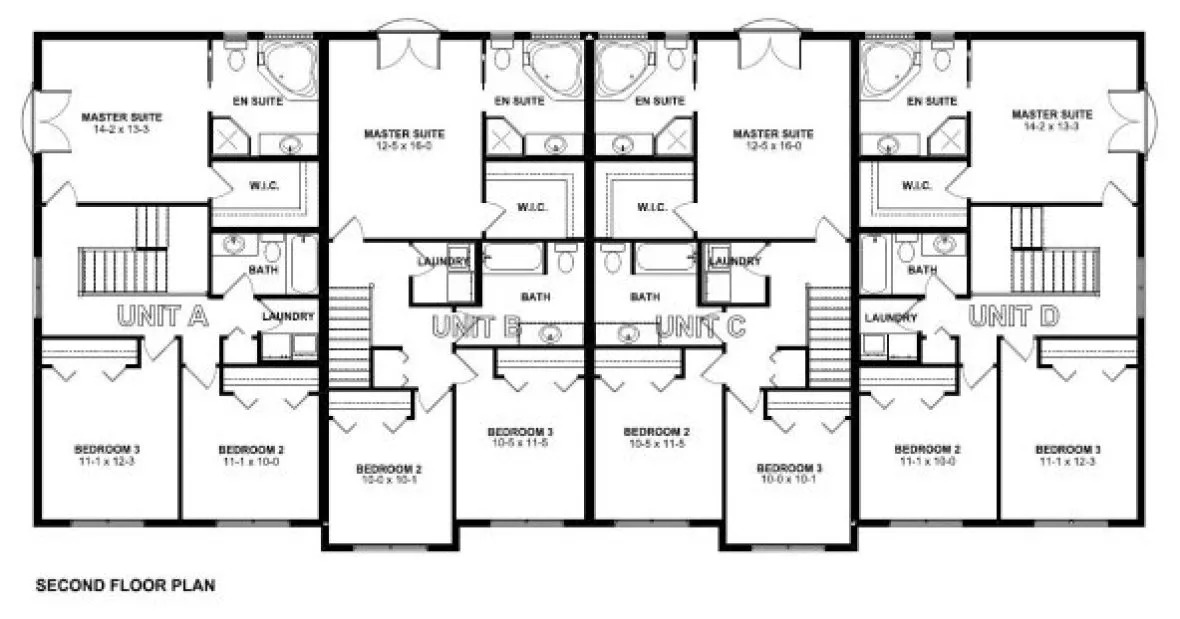
This townhouse complex features an attractive and modern design, each unit having a master bedroom with walk-in closet, two more full size bedrooms, an open living area and a garage. Floor Areas: Main Floor: 2125 sq. ft. (Units A & D: 513 sq.ft. Units B & C: 541 sq.ft.) Second Floor: 3644 sq. ft. (Units A & D: 936 sq.ft. Units B & C: 885 sq.ft.) Garage Area: 1505 sq.ft. (Units A & D: 459 sq.ft. Units B & C: 294 sq.ft.)
Specifications
Total 5769 sq ft
- Main: 513
- Second: 936
- Third: 0
- Loft/Bonus: 0
- Basement: 0
- Garage: 0
Rooms
- Beds: 3
- Baths: 2
- 1/2 Bath: 1
- 3/4 Bath: 0
Ceiling Height
- Main: 9'0
- Second: 9'0
- Third:
- Loft/Bonus:
- Basement:
- Garage:
Details
- Exterior Walls: 2x4
- Garage Type:
- Width: 97'0
- Depth: 42'6
Roof
- Max Ridge Height: 31'0
- Comments: ()
- Primary Pitch: 6/12
- Secondary Pitch: 0/12
Add to Cart
Pricing
– westhomeplanners.com
– westhomeplanners.com
– westhomeplanners.com
– westhomeplanners.com
– westhomeplanners.com
– westhomeplanners.com
[Back to Search Results]

833–493–0942




