Plan No.271281
Irresistible Craftsman
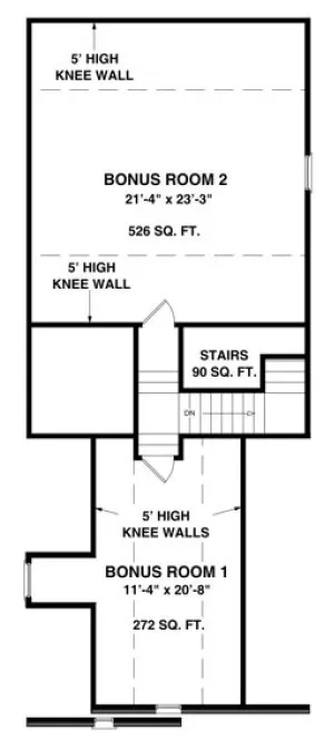
This irresistible 1,820 sq. ft. home features craftsman styling reminiscent of the early 20th century. A covered porch invites you to enter the spacious dining and family room areas. Raised ceilings, an arch-top window unit and a fireplace add drama to this space. Accessible from the family room, a screened porch offers the perfect spot for sheltered socializing. The roomy kitchen features a breakfast nook, pantry and access to the laundry room through a pocket door. Located near the kitchen, the master suite sets a dreamy tone with its tray ceiling and sitting area which accesses the screened porch. Separate his and hers closets provide ample hanging space for clothing. The spacious master bath has a separate shower and corner garden tub. A powder room for guests is just outside the master suite. On the opposite side of this floor plan, two generous bedrooms share a bathroom. The real surprise of this design is located through a door off the breakfast room. Steps lead up to two bonus rooms offering limitless possibilities for home office space, a craft room, guest room, playroom, etc. Together they offer nearly 800 sq. ft. of additional living space.
Specifications
Total 1820 sq ft
- Main: 1820
- Second: 0
- Third: 0
- Loft/Bonus: 0
- Basement: 0
- Garage: 462
Rooms
- Beds: 3
- Baths: 2
- 1/2 Bath: 1
- 3/4 Bath: 0
Ceiling Height
- Main: 9'0
- Second:
- Third:
- Loft/Bonus:
- Basement:
- Garage: 10'4
Details
- Exterior Walls: 2x4
- Garage Type: doubleGarage
- Width: 50'0
- Depth: 74'3
Roof
- Max Ridge Height: 22'6
- Comments: ()
- Primary Pitch: 7/12
- Secondary Pitch: 12/12

833–493–0942


