Plan No.270281
Inviting and Classic
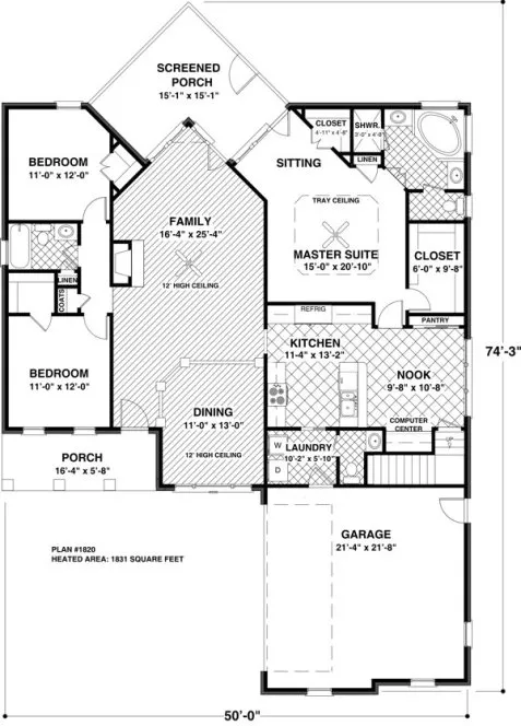
An inviting covered porch welcomes you to a dining room, surrounded by classic columns, and a spacious family room. A cozy fireplace, 12� high ceilings and an arch-top window unit highlight this space. Located off the family room is a screened porch that is perfect for relaxing with a good book. This functional split bedroom plan offers a private master suite near the kitchen. Abundant closet space, a sitting/reading area and roomy master bath with separate vanities, corner garden tub, shower and toilet compartment make this truly an owner�s paradise. The opposite end of the house features two comfortable bedrooms and a full bath. Boasting a serving bar and breakfast nook with a pantry and computer center, the kitchen is a gourmet chef�s delight. The laundry room with an adjacent powder room is located off the kitchen. A door in the breakfast nook leads to a double bonus � 2 bonus rooms to be exact! These could serve any number of functions including a home office, media room, playroom, library, craft/sewing room, etc.
Specifications
Total 1831 sq ft
- Main: 1831
- Second: 0
- Third: 0
- Loft/Bonus: 0
- Basement: 0
- Garage: 462
Rooms
- Beds: 3
- Baths: 2
- 1/2 Bath: 1
- 3/4 Bath: 0
Ceiling Height
- Main: 9'0
- Second:
- Third:
- Loft/Bonus:
- Basement:
- Garage: 10'4
Details
- Exterior Walls: 2x4
- Garage Type: doubleGarage
- Width: 50'0
- Depth: 74'3
Roof
- Max Ridge Height: 22'6
- Comments: ()
- Primary Pitch: 7/12
- Secondary Pitch: 12/12

833–493–0942


