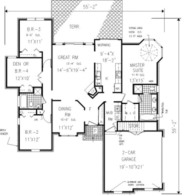
Plan No.388199
The Wingdale
Specifications
Total 1742 sq ft
- Main: 1742
- Second: 0
- Third: 0
- Loft/Bonus: 0
- Basement: 1790
- Garage: 454
Rooms
- Beds: 3
- Baths: 2
- 1/2 Bath: 0
- 3/4 Bath: 0
Ceiling Height
- Main:
- Second:
- Third:
- Loft/Bonus:
- Basement:
- Garage:
Details
- Exterior Walls: 2x6
- Garage Type: doubleGarage
- Width: 56'0"
- Depth: 60'0"
Roof
- Max Ridge Height: 23'0"
- Comments: ()
- Primary Pitch: 0/12
- Secondary Pitch: 0/12
Add to Cart
Pricing
– westhomeplanners.com
– westhomeplanners.com
– westhomeplanners.com
[Back to Search Results]

833–493–0942

