Plan No.384089
The Stony Brook
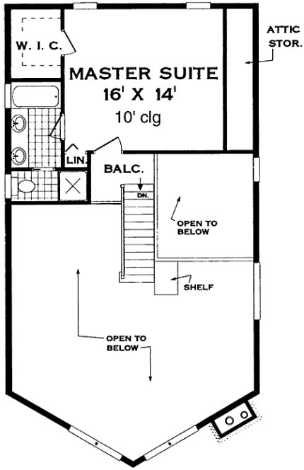
Living room and dining room enjoy spectacular views through walls of glass. Open kitchen offers serving bar to living areas; convenient laundry closet nearby. Den with high ceiling and optional French doors can serve as fourth bedroom. Just beyond upper-floor balcony, master suite includes private bath and large walk-in closet.
Specifications
Total 1468 sq ft
- Main: 1072
- Second: 396
- Third: 0
- Loft/Bonus: 0
- Basement: 760
- Garage: 0
Rooms
- Beds: 3
- Baths: 2
- 1/2 Bath: 0
- 3/4 Bath: 0
Ceiling Height
- Main:
- Second:
- Third:
- Loft/Bonus:
- Basement:
- Garage:
Details
- Exterior Walls: 2x6
- Garage Type: doubleGarage
- Width: 26'0
- Depth: 46'0
Roof
- Max Ridge Height: 25'0
- Comments: ()
- Primary Pitch: 0/12
- Secondary Pitch: 0/12
Add to Cart
Pricing
– westhomeplanners.com
– westhomeplanners.com
– westhomeplanners.com
– westhomeplanners.com
– westhomeplanners.com
[Back to Search Results]

833–493–0942



