Plan No.195181
Economical Multi-Family Dwelling
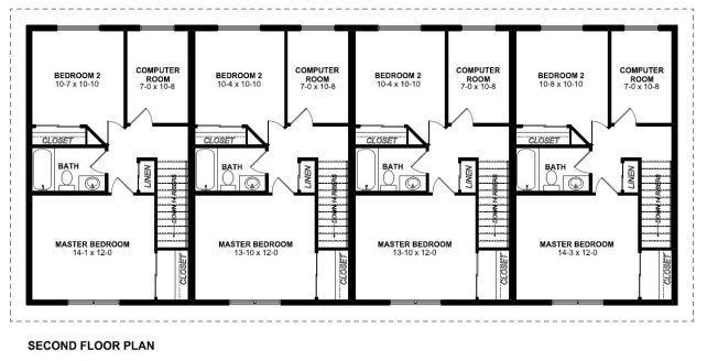
This four unit townhouse is a practical and economic option for your multi-family development needs. The walk-out basement at the rear of the house can be modified easily to a full in-ground basement. Floor Areas; Main Floor: 2389 sq. ft. (597 per unit Second Floor: 2389 sq. ft. (597 per unit) Basement Floor: 2389 sq.ft. (597 per unit)
Specifications
Total 4776 sq ft
- Main: 597
- Second: 597
- Third: 0
- Loft/Bonus: 0
- Basement: 597
- Garage: 0
Rooms
- Beds: 2
- Baths: 1
- 1/2 Bath: 1
- 3/4 Bath: 0
Ceiling Height
- Main: 8'0
- Second: 8'0
- Third:
- Loft/Bonus:
- Basement: 8'0
- Garage:
Details
- Exterior Walls: 2x6
- Garage Type:
- Width: 74'8
- Depth: 32'0
Roof
- Max Ridge Height: 25'6
- Comments: ()
- Primary Pitch: 4/12
- Secondary Pitch: 0/12
Add to Cart
Pricing
Full Rendering – westhomeplanners.com
MAIN Plan – westhomeplanners.com
SECOND Plan – westhomeplanners.com
BASEMENT Plan – westhomeplanners.com
REAR Elevation – westhomeplanners.com
LEFT Elevation – westhomeplanners.com
RIGHT Elevation – westhomeplanners.com
[Back to Search Results]

833–493–0942





