Plan No.380379
Stars and Stripes
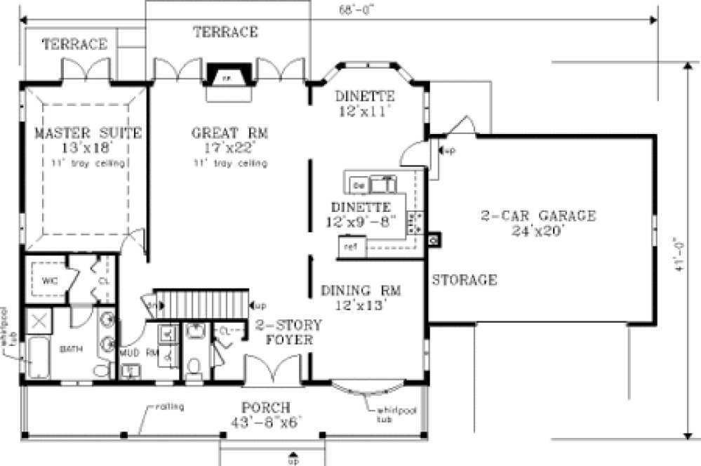
The covered porch of this rustic home offers a cool and comfortable place to relax. The grandeur of the outdoors makes its way inside into the cathedral ceiling great room that has a fireplace flanked by wooden French doors. The exciting master suite offers a vaulted ceiling, French doors to the backyard terrace, and a master bath that includes garden whirlpool tub and shower. Upstairs, a bridge balcony overlooking the great room and foyer connects the three large bedrooms and a full bath.
Specifications
Total 2136 sq ft
- Main: 1456
- Second: 680
- Third: 0
- Loft/Bonus: 0
- Basement: 1456
- Garage: 0
Rooms
- Beds: 4
- Baths: 2
- 1/2 Bath: 1
- 3/4 Bath: 0
Ceiling Height
- Main:
- Second:
- Third:
- Loft/Bonus:
- Basement:
- Garage:
Details
- Exterior Walls: 2x6
- Garage Type: doubleGarage
- Width: 68'0"
- Depth: 41'0"
Roof
- Max Ridge Height: 29'0'
- Comments: ()
- Primary Pitch: 0/12
- Secondary Pitch: 0/12
Add to Cart
Pricing
– westhomeplanners.com
– westhomeplanners.com
– westhomeplanners.com
– westhomeplanners.com
[Back to Search Results]

833–493–0942


