Plan No.387059
Classic Country
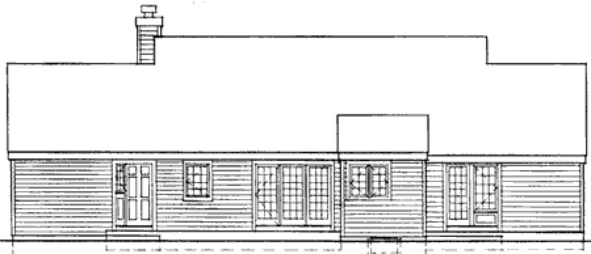
This country home features a classic exterior and a luxurious interior design in an economical floor plan. Stylish windows brighten the spacious living room, where a handsome recessed fireplace crackles. The dining room and the efficient kitchen share a stylish serving bar. The secluded master suite is graced by a 12-ft. cathedral ceiling. A French door opens to a private terrace.
Specifications
Total 1232 sq ft
- Main: 1232
- Second: 0
- Third: 0
- Loft/Bonus: 0
- Basement: 1183
- Garage: 0
Rooms
- Beds: 3
- Baths: 2
- 1/2 Bath: 0
- 3/4 Bath: 0
Ceiling Height
- Main:
- Second:
- Third:
- Loft/Bonus:
- Basement:
- Garage:
Details
- Exterior Walls: 2x6
- Garage Type: singleGarage
- Width: 61'0"
- Depth: 36'0"
Roof
- Max Ridge Height: 21'0"
- Comments: ()
- Primary Pitch: 0/12
- Secondary Pitch: 0/12
Add to Cart
Pricing
– westhomeplanners.com
– westhomeplanners.com
– westhomeplanners.com
[Back to Search Results]

833–493–0942

