Plan No.380739
Relax in a Sun Room Porch
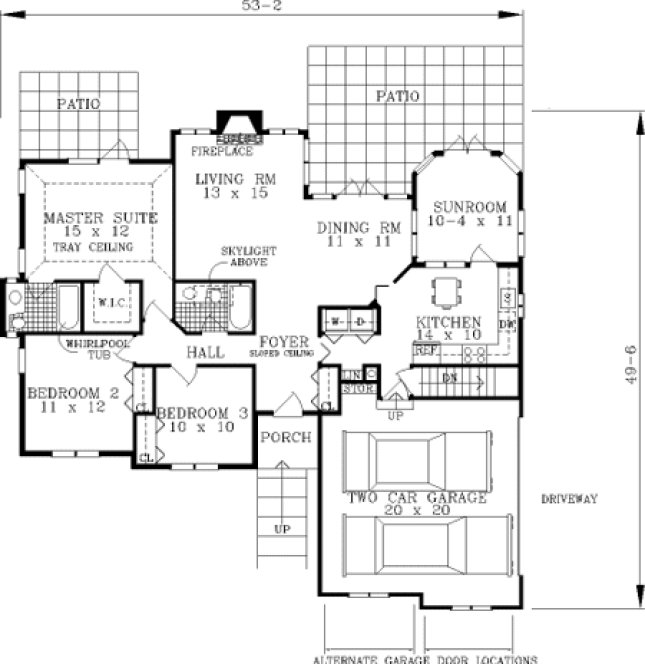
Classic styling is captured in this home's elegant exterior, accented with half-round windows. The graceful foyer has a sloped ceiling and flows into a huge entertaining space. The living and dining rooms share a fireplace and a view of the adjoining patio through exciting rear glass walls. A large casual living space is created with a sunny eating area and large kitchen. The addition of a sun room porch provides extra space for relaxing or entertaining. At the opposite end of the home, the master suite is the perfect quiet retreat. The bedroom features a tray ceiling and a private patio. A large walk-in closet and a personal bath are also included.
Specifications
Total 1373 sq ft
- Main: 1373
- Second: 0
- Third: 0
- Loft/Bonus: 0
- Basement: 1248
- Garage: 507
Rooms
- Beds: 3
- Baths: 2
- 1/2 Bath: 0
- 3/4 Bath: 0
Ceiling Height
- Main:
- Second:
- Third:
- Loft/Bonus:
- Basement:
- Garage:
Details
- Exterior Walls: 2x6
- Garage Type: doubleGarage
- Width: 53'0
- Depth: 50'0
Roof
- Max Ridge Height:
- Comments: ()
- Primary Pitch: 0/12
- Secondary Pitch: 0/12
Add to Cart
Pricing
– westhomeplanners.com
– westhomeplanners.com
[Back to Search Results]

833–493–0942
