Plan No.385362
Spectacular Views
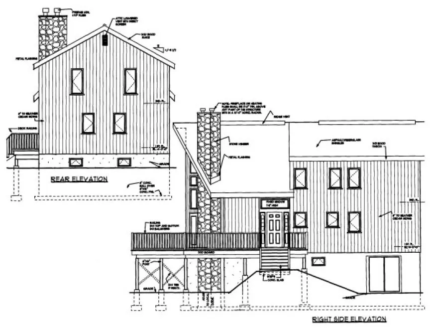
With its wraparound deck and soaring windows, this chalet-style home is ideal for recreational living and scenic sites. The living and dining rooms of this spectacular vacation home are combined to take advantage of the dramatic cathedral ceiling, the rugged stone fireplace and the view through the spectacular windows. The open kitchen features a bright corner sink and a nifty breakfast bar that adjoins the living area. The handy main-floor laundry area is close to two bedrooms and a full bath. The second-floor den is a feature rarely found in a home of this size and style. The master suite and a storage area complete the upper floor. A high ceiling and a pampering bath give this space an elegant feel. The basement option includes a tuck-under garage and a separate utility area. A family room may be finished later. PLEASE NOTE: Plan not exactly as illustrated, see elevations below.
Specifications
Total 1721 sq ft
- Main: 1165
- Second: 556
- Third: 0
- Loft/Bonus: 0
- Basement: 717
- Garage: 448
Rooms
- Beds: 3
- Baths: 2
- 1/2 Bath: 0
- 3/4 Bath: 0
Ceiling Height
- Main:
- Second:
- Third:
- Loft/Bonus:
- Basement:
- Garage:
Details
- Exterior Walls: 2x6
- Garage Type: singleGarage
- Width: 26'0
- Depth: 46'0
Roof
- Max Ridge Height: 25'0
- Comments: ()
- Primary Pitch: 12/12
- Secondary Pitch: 6.5/12

833–493–0942




