Plan No.389002
A Warm Front
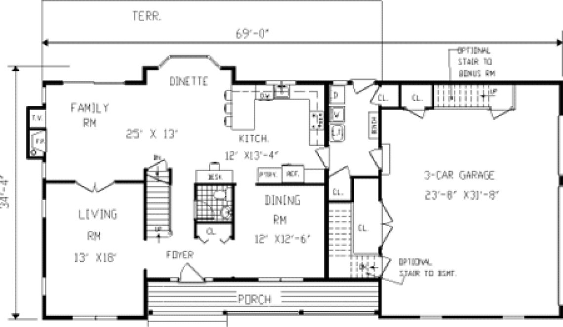
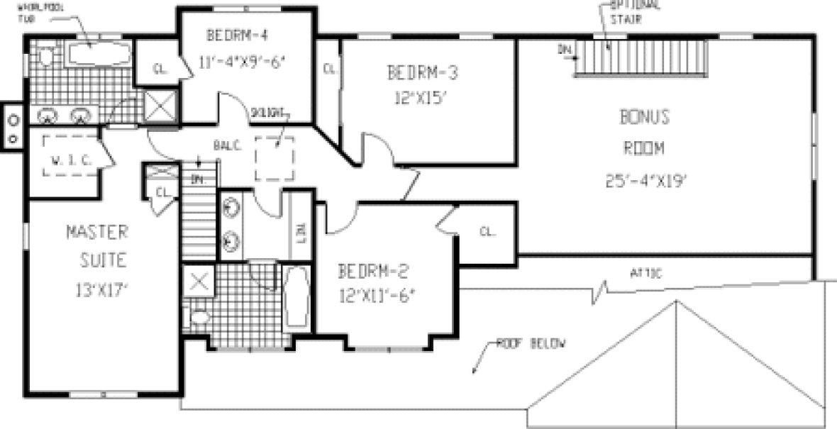
Exqusite windows, charming gables and an inviting porch front this warm, thoughtful family home. Inside, choose between formal affairs and casual get-togethers: the living and dining rooms are ideal for stylish entertaining, while the open areas are great family spots. Four bedrooms, including the exciting master suite, are on the upper floor.
Specifications
Total 3171 sq ft
- Main: 1488
- Second: 1683
- Third: 0
- Loft/Bonus: 0
- Basement: 1556
- Garage: 773
Rooms
- Beds: 4
- Baths: 2
- 1/2 Bath: 1
- 3/4 Bath: 0
Ceiling Height
- Main:
- Second:
- Third:
- Loft/Bonus:
- Basement:
- Garage:
Details
- Exterior Walls: 2x4
- Garage Type: tripleGarage
- Width: 71'0"
- Depth: 35'0"
Roof
- Max Ridge Height: 26'0"
- Comments: ()
- Primary Pitch: 6/12
- Secondary Pitch: 10/12
Add to Cart
Pricing
– westhomeplanners.com
– westhomeplanners.com
– westhomeplanners.com
– westhomeplanners.com
[Back to Search Results]

833–493–0942


