Plan No.311030
Unique Sloped Ceilings
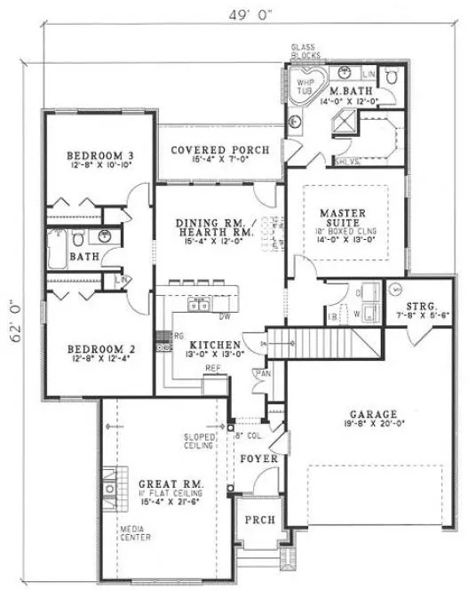
A covered entry porch sets the stage for elegance in this home. Travel through the foyer, and enter a spacious great room with unique sloped ceilings, complete with built-in media center for hours of family entertainment. Take advantage of the distinguished dining and hearth room with a lovely fireplace. Continue entertaining on your covered rear porch over conversation and a breath-taking view.
Specifications
Total 1654 sq ft
- Main: 1654
- Second: 0
- Third: 0
- Loft/Bonus: 0
- Basement: 0
- Garage: 400
Rooms
- Beds: 3
- Baths: 2
- 1/2 Bath: 0
- 3/4 Bath: 0
Ceiling Height
- Main: 9'0
- Second:
- Third:
- Loft/Bonus:
- Basement:
- Garage: 10'4
Details
- Exterior Walls: 2x4
- Garage Type: doubleCarport
- Width: 49'0
- Depth: 58'6
Roof
- Max Ridge Height: 27'10
- Comments: ()
- Primary Pitch: 12/12
- Secondary Pitch: 0/12
Add to Cart
Pricing
– westhomeplanners.com
– westhomeplanners.com
[Back to Search Results]

833–493–0942
