Plan No.310030
European Beauty
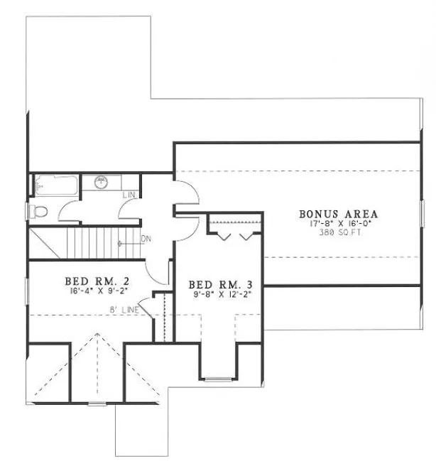
Become enchanted by European beauty as you enter this home. Nine foot ceilings create a marvelous openness throughout the entire plan especially in the great room. Spend hours entertaining friends and family, before journeying to the elegant dining room for a spectacular meal followed by conversation over coffee. A clever grilling porch just off the kitchen area provides ample room and convenience to prepare the cuisine. After the party ends, retreat to your private master suite or relax in the whirlpool tub of your master bath. A large bonus room and two bedrooms, with adjoining bath on the upper level, make an excellent children's suite. < Optional Daylight Basement or Basement Foundation Available for Additional $250>
Specifications
Total 1684 sq ft
- Main: 1155
- Second: 529
- Third: 0
- Loft/Bonus: 0
- Basement: 0
- Garage: 400
Rooms
- Beds: 3
- Baths: 2
- 1/2 Bath: 1
- 3/4 Bath: 0
Ceiling Height
- Main: 9'0
- Second: 8'0
- Third:
- Loft/Bonus:
- Basement:
- Garage: 10'4
Details
- Exterior Walls: 2x4
- Garage Type: doubleCarport
- Width: 47'0
- Depth: 50'0
Roof
- Max Ridge Height: 27'6
- Comments: (Main Floor to Peak)
- Primary Pitch: 12/12
- Secondary Pitch: 0/12
Add to Cart
Pricing
– westhomeplanners.com
– westhomeplanners.com
– westhomeplanners.com
Renderings – westhomeplanners.com
[Back to Search Results]

833–493–0942


