Plan No.312920
Quaint Covered Porch
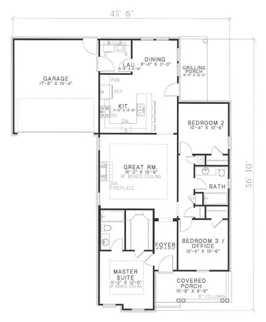
This traditional neighborhood home has a quaint covered porch to welcome friends and family for an afternoon of visiting. Entering through the foyer, your guests will enjoy gathering in the great room with a fireplace to warm themselves from the frigid temperatures that winter brings. During the summer, entertain on your rear grilling porch. When entertaining, you will enjoy quiet time in your master suite, with a large walk-in closet and private bath. Two additional bedrooms complete this design.
Specifications
Total 1289 sq ft
- Main: 1289
- Second: 0
- Third: 0
- Loft/Bonus: 0
- Basement: 0
- Garage: 342
Rooms
- Beds: 3
- Baths: 2
- 1/2 Bath: 0
- 3/4 Bath: 0
Ceiling Height
- Main: 9'0
- Second:
- Third:
- Loft/Bonus:
- Basement:
- Garage: 10'4
Details
- Exterior Walls: 2x4
- Garage Type: doubleGarage
- Width: 45'6
- Depth: 56'10
Roof
- Max Ridge Height: 23'2
- Comments: ()
- Primary Pitch: 12/12
- Secondary Pitch: 0/12
Add to Cart
Pricing
– westhomeplanners.com
– westhomeplanners.com
– westhomeplanners.com
[Back to Search Results]

833–493–0942

