Plan No.314820
Breakfast Nook with Bay Windows
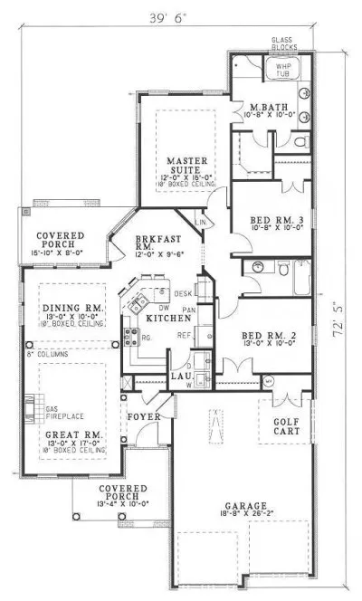
As you enter this home, you are welcomed onto a lovely covered porch with ten foot ceilings and led directly into the traditional foyer. From there you'll enjoy a combination great room and dining area divided only by magnificent wooden columns. An easily accessible kitchen is accented by a breakfast nook complete with bay windows and entry to a rear covered grilling porch. Spend hours delighting friends and family with your grilling expertise. < Optional Daylight Basement or Basement Foundation Available for Additional $250>
Specifications
Total 1504 sq ft
- Main: 1504
- Second: 0
- Third: 0
- Loft/Bonus: 0
- Basement: 0
- Garage: 488
Rooms
- Beds: 3
- Baths: 2
- 1/2 Bath: 0
- 3/4 Bath: 0
Ceiling Height
- Main: 9'0"
- Second:
- Third:
- Loft/Bonus:
- Basement:
- Garage: 10'4"
Details
- Exterior Walls: 2x4
- Garage Type: doubleGarage
- Width: 39'6"
- Depth: 72'5"
Roof
- Max Ridge Height: 24'10"
- Comments: ()
- Primary Pitch: 10/12
- Secondary Pitch: 0/12
Add to Cart
Pricing
– westhomeplanners.com
– westhomeplanners.com
– westhomeplanners.com
[Back to Search Results]

833–493–0942

