Plan No.314720
Decor Ceiling Great Room
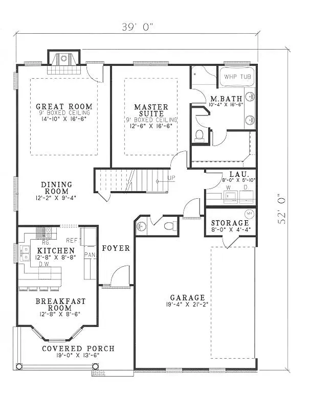
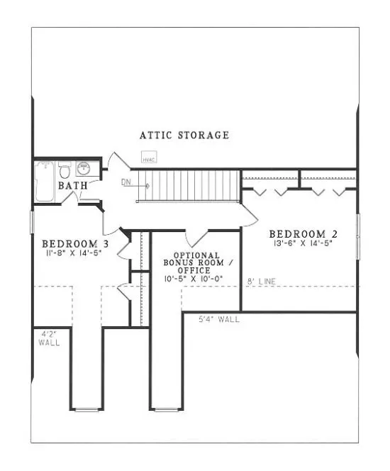
This southern traditional home is designated with a split bedroom plan. Visit with family and friends on the front porch as the children play in the front yard. Walking through the foyer, you'll notice the dining room, opening to the expansive great room. Preparing the family's dinner is simple with fluid access to the dining room and a handy breakfast room. Evenings can be spent in your master suite cuddled up reading a book or in the master bath soaking in the whirlpool bath. Upstairs provides children with privacy while the optional bonus room can function as an office.
Specifications
Total 1897 sq ft
- Main: 1299
- Second: 598
- Third: 0
- Loft/Bonus: 0
- Basement: 0
- Garage: 430
Rooms
- Beds: 3
- Baths: 2
- 1/2 Bath: 1
- 3/4 Bath: 0
Ceiling Height
- Main: 8'0"
- Second: 8'0"
- Third:
- Loft/Bonus:
- Basement:
- Garage: 9'4"
Details
- Exterior Walls: 2x4
- Garage Type: doubleGarage
- Width: 39'0"
- Depth: 52'0"
Roof
- Max Ridge Height: 26'5"
- Comments: ()
- Primary Pitch: 10/12
- Secondary Pitch: 4/12
Add to Cart
Pricing
– westhomeplanners.com
– westhomeplanners.com
– westhomeplanners.com
– westhomeplanners.com
[Back to Search Results]

833–493–0942


