Plan No.311320
Lovely Vacation View
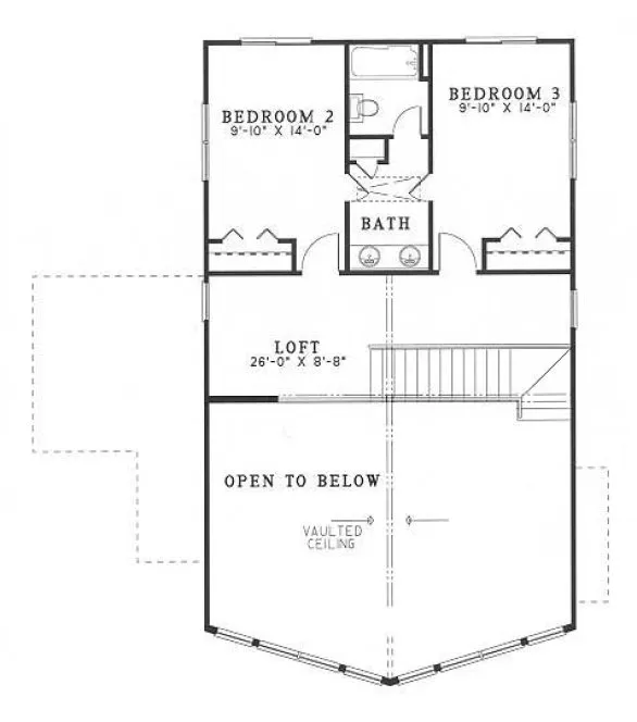
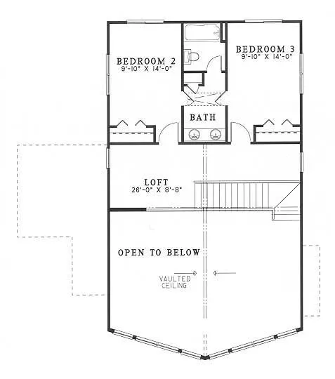
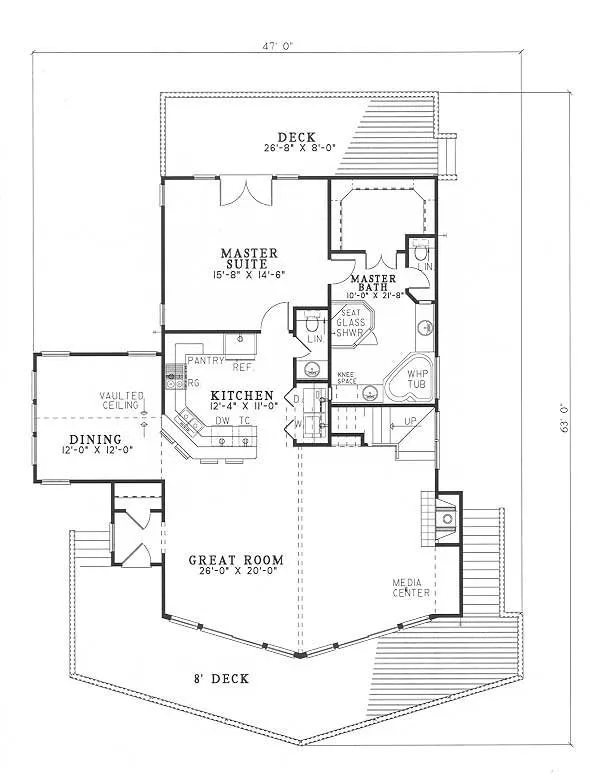
Indulge in this beautiful vacation style home with an open great room with vaulted ceiling and a glorious view of your surroundings. A media center and fireplace add entertaining enjoyment and the secluded master suite with all the amenities will be the perfect haven. The upstairs loft area features two bedrooms and full bathroom for plenty of space for guests.
Specifications
Total 2054 sq ft
- Main: 1413
- Second: 641
- Third: 0
- Loft/Bonus: 0
- Basement: 0
- Garage: 0
Rooms
- Beds: 3
- Baths: 2
- 1/2 Bath: 1
- 3/4 Bath: 0
Ceiling Height
- Main: 8'0"
- Second: 8'0"
- Third:
- Loft/Bonus:
- Basement:
- Garage:
Details
- Exterior Walls: 2x4
- Garage Type:
- Width: 47'0"
- Depth: 63'0"
Roof
- Max Ridge Height: 31'6"
- Comments: ()
- Primary Pitch: 12/12
- Secondary Pitch: 3/12
Add to Cart
Pricing
– westhomeplanners.com
– westhomeplanners.com
– westhomeplanners.com
– westhomeplanners.com
rear rendering – westhomeplanners.com
[Back to Search Results]

833–493–0942



