Plan No.271013
Traditional European
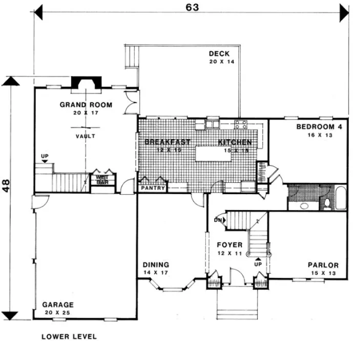
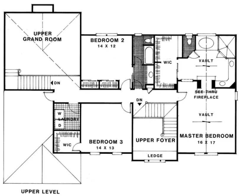
This 3,165 sq.ft. European traditional plan is depicted here with a stucco exterior. The two-story foyer has double coat closets. To the right of the foyer is a 15'x13' parlor. On the left is the 14'x17' dining room accented by a bay window. Just off of the dining room is a 12'x15' breakfast room with a pantry and a 15'x13' gourmet kitchen which has a center work island. The 20'x17' grand room features a vaulted ceiling, fireplace, built-in wet bar and double French doors leading onto a 20'x14' deck. Completing the lower level are a 16'x13' bedroom and a hall bath. The upper level is accessible by front or back stairs. Bedroom 2 measures 14'x12', has its own entrance to a hall bath and features twin closets. Bedroom 3 measures 14'x13' and has a walk-in closet. The laundry room is conveniently located on the upper level. The master suite, measuring 16'x17', has a vaulted ceiling and a see-thru fireplace. The master bath has a garden tub, corner shower and curved vanity with double sinks. A large walk-in closet is located just off of the dressing area.
Specifications
Total 3165 sq ft
- Main: 1823
- Second: 1342
- Third: 0
- Loft/Bonus: 0
- Basement: 1823
- Garage: 500
Rooms
- Beds: 4
- Baths: 3
- 1/2 Bath: 0
- 3/4 Bath: 0
Ceiling Height
- Main: 9'0
- Second: 8'0
- Third:
- Loft/Bonus:
- Basement: 8'0
- Garage: 10'4
Details
- Exterior Walls: 2x4
- Garage Type: doubleGarage
- Width: 63'0
- Depth: 48'0
Roof
- Max Ridge Height: 34'6
- Comments: ()
- Primary Pitch: 10/12
- Secondary Pitch: 0/12

833–493–0942

