Plan No.314120
Lovely Lanai
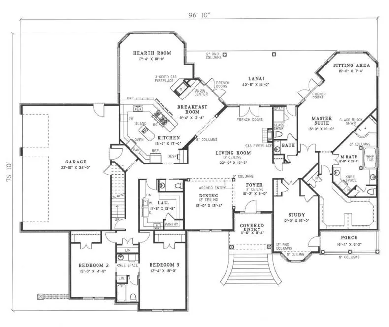
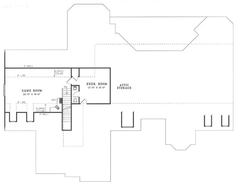
Enter through the brick arched entry of this home to find an elegant design where entertaining family and friends is fun and easy. Enjoy the coziness of the hearth room when family visits for the holiday. After the party ends, you'll find comfort in the privacy on your secluded master suite with a sitting area or relax in your soothing whirlpool bath. Beautiful French doors welcome you to the lanai where mornings and afternoons are best enjoyed. Upstairs, you can start each day by exercising or end the day by entertaining in the game room.
Specifications
Total 4532 sq ft
- Main: 3732
- Second: 800
- Third: 0
- Loft/Bonus: 0
- Basement: 0
- Garage: 810
Rooms
- Beds: 3
- Baths: 3
- 1/2 Bath: 2
- 3/4 Bath: 0
Ceiling Height
- Main: 10'0"
- Second: 8'0"
- Third:
- Loft/Bonus:
- Basement:
- Garage: 11'4"
Details
- Exterior Walls: 2x4
- Garage Type: tripleGarage
- Width: 96'10"
- Depth: 75'10"
Roof
- Max Ridge Height:
- Comments: ()
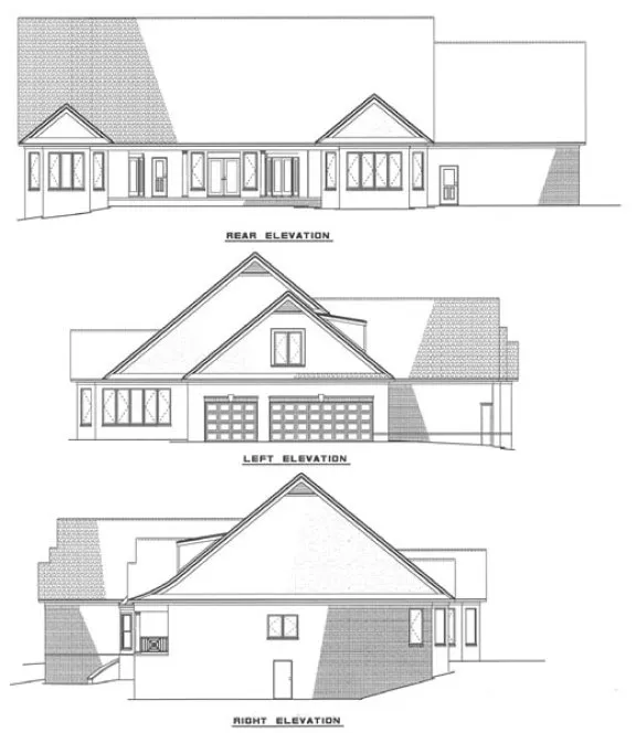
- Primary Pitch: 10/12
- Secondary Pitch: 0/12
Add to Cart
Pricing
– westhomeplanners.com
– westhomeplanners.com
– westhomeplanners.com
– westhomeplanners.com
[Back to Search Results]

833–493–0942


