Plan No.316910
Cavernous Closet
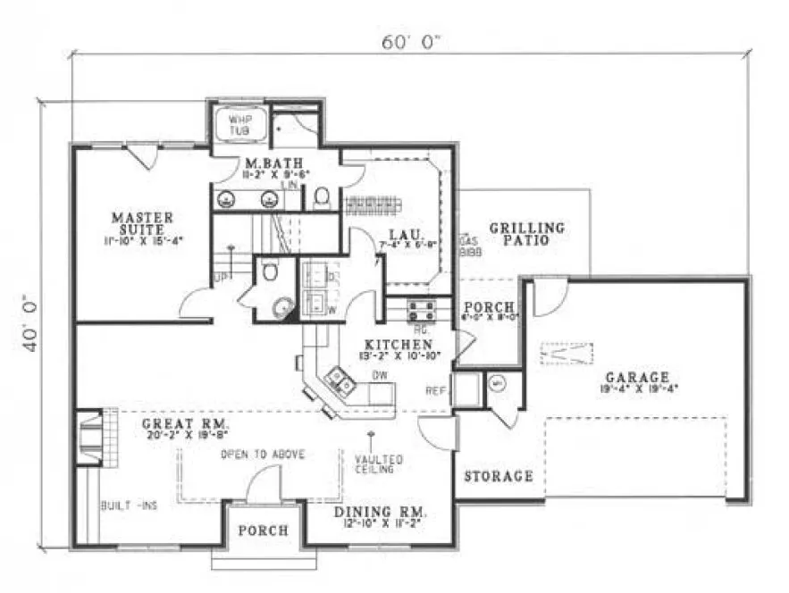
Enjoy the feel of a house in the country while maintaining all of the modern amenities in the home. The great room, entry and dining room flow into one expansive area to allow for family fun or more formal entertaining. An angled bar allows easy access from kitchen to the dining area and also serves as a breakfast bar. The master suite encompasses the rear of the main floor and includes a cavernous closet that also opens into the laundry area. < Optional Daylight Basement or Basement Foundation Available for Additional $250>
Specifications
Total 1713 sq ft
- Main: 1247
- Second: 466
- Third: 0
- Loft/Bonus: 0
- Basement: 0
- Garage: 374
Rooms
- Beds: 3
- Baths: 2
- 1/2 Bath: 1
- 3/4 Bath: 0
Ceiling Height
- Main: 8'0"
- Second: 8'0"
- Third:
- Loft/Bonus:
- Basement:
- Garage: 9'4"
Details
- Exterior Walls: 2x4
- Garage Type: doubleGarage
- Width: 60'0"
- Depth: 40'0"
Roof
- Max Ridge Height:
- Comments: ()
- Primary Pitch: 10/12
- Secondary Pitch: 0/12
Add to Cart
Pricing
– westhomeplanners.com
– westhomeplanners.com
– westhomeplanners.com
– westhomeplanners.com
[Back to Search Results]

833–493–0942


