Plan No.317710
Morning Rays on the Front Porch
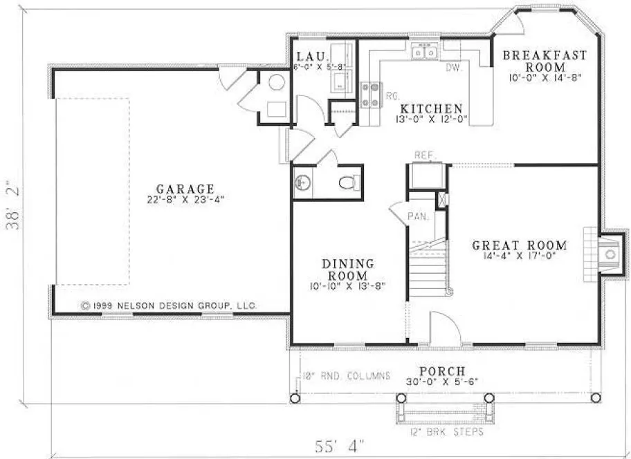
Bask in the early morning rays as you sip your morning coffee and read the daily paper on the front porch of this home. Dinner guests will relish at the warmth of the fire in the inviting great room. Display tempting appetizers on the bar in your spacious kitchen. Upstairs, you'll appreciate the convenience of having your master suite near the children. French doors welcome you into your master bath with an impressive whirlpool bath and walk-in closet. A future game room would be ideal for utilizing the bonus area.
Specifications
Total 1841 sq ft
- Main: 921
- Second: 920
- Third: 0
- Loft/Bonus: 0
- Basement: 0
- Garage: 529
Rooms
- Beds: 0
- Baths: 0
- 1/2 Bath: 0
- 3/4 Bath: 0
Ceiling Height
- Main: 8'0"
- Second: 8'0"
- Third:
- Loft/Bonus:
- Basement:
- Garage: 9'4"
Details
- Exterior Walls: 2x4
- Garage Type: doubleGarage
- Width: 55'4"
- Depth: 38'2"
Roof
- Max Ridge Height: 26'9"
- Comments: ()
- Primary Pitch: 8/12
- Secondary Pitch: 3/12
Add to Cart
Pricing
– westhomeplanners.com
– westhomeplanners.com
– westhomeplanners.com
– westhomeplanners.com
[Back to Search Results]

833–493–0942


