Plan No.310810
Morning Room with Lovely View
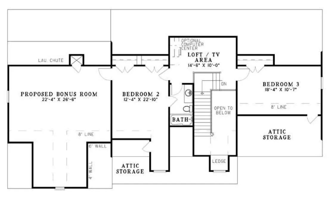
The highlight of this glorious Nelson Design Group home plan is the morning room with a lovely view of the back yard. Family and weekend guests will enjoy gathering in this oversized kitchen and breakfast room with access to a side-grilling porch perfect for morning coffee. Just off the kitchen is a handy computer center located in the hallway that leads to the private master suite, which is packed, with amenities. The upstairs has an enormous proposed bonus room, full bathroom and two large bedrooms with plenty of closet space and a loft area with optional computer center for family to enjoy.
Specifications
Total 2320 sq ft
- Main: 1591
- Second: 729
- Third: 0
- Loft/Bonus: 0
- Basement: 0
- Garage: 493
Rooms
- Beds: 3
- Baths: 2
- 1/2 Bath: 1
- 3/4 Bath: 0
Ceiling Height
- Main: 9'0"
- Second: 8'0"
- Third:
- Loft/Bonus:
- Basement:
- Garage: 10'4"
Details
- Exterior Walls: 2x4
- Garage Type: doubleGarage
- Width: 69'2"
- Depth: 39'4"
Roof
- Max Ridge Height: 25'7"
- Comments: ()
- Primary Pitch: 10/12
- Secondary Pitch: 0/12
Add to Cart
Pricing
– westhomeplanners.com
– westhomeplanners.com
– westhomeplanners.com
– westhomeplanners.com
[Back to Search Results]

833–493–0942


