Plan No.312610
Dual Master Walk-ins
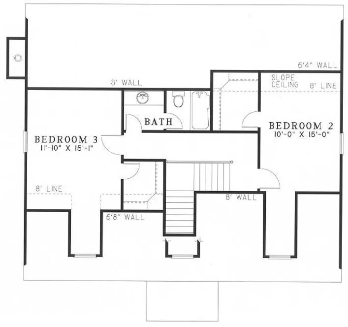
This home seems to beckon to all who step upon its porch. Upon entering the home you?ll be enchanted by the openness of the dining room with built-in media center and easy access to the kitchen and formal dining room. The living room or office with built-in bookshelves is the perfect place for completing the day?s paperwork or cuddling up with a good book. The Master Suite offers the ease of two walk-in closets while the bath provides a haven for relaxation in the whirlpool tub. The upper floor allows the children to have privacy of their own. Bedrooms two and three are complete with large walk-in closets and shared full bath.
Specifications
Total 2044 sq ft
- Main: 1400
- Second: 644
- Third: 0
- Loft/Bonus: 0
- Basement: 0
- Garage: 0
Rooms
- Beds: 3
- Baths: 2
- 1/2 Bath: 1
- 3/4 Bath: 0
Ceiling Height
- Main: 9'0"
- Second: 8'0"
- Third:
- Loft/Bonus:
- Basement:
- Garage:
Details
- Exterior Walls: 2x4
- Garage Type: doubleGarage
- Width: 42'4"
- Depth: 40'0"
Roof
- Max Ridge Height: 23'2"
- Comments: ()
- Primary Pitch: 9/12
- Secondary Pitch: 0/12
Add to Cart
Pricing
– westhomeplanners.com
– westhomeplanners.com
– westhomeplanners.com
– westhomeplanners.com
[Back to Search Results]

833–493–0942


