Plan No.311610
Grand Two Storey Foyer
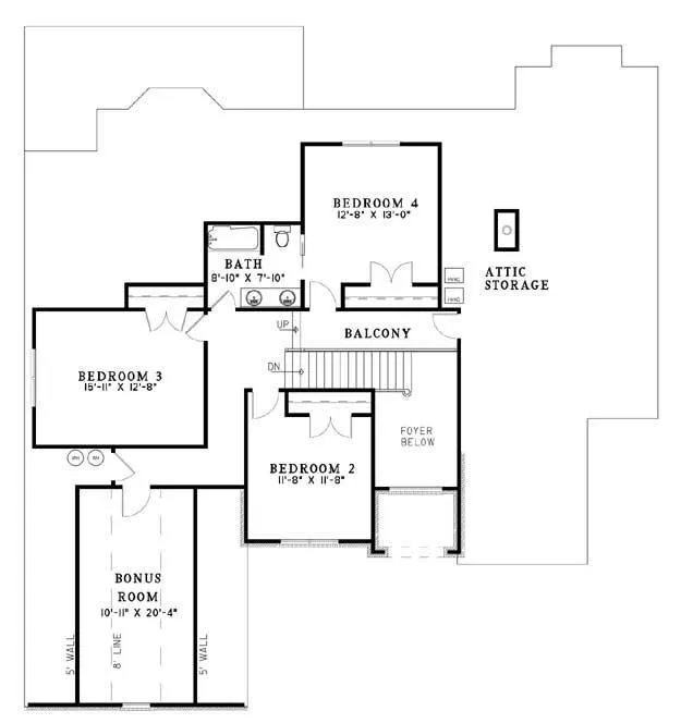
From the moment your guests step from the porch with arched opening into the grand foyer open to the second floor, they will be welcomed into a home designed for gracious yet comfortable living. Whether entertaining guests or a family night at home, the large great room with a 10-foot boxed ceiling is sure to be a favored place. The hearth room located between the family room and kitchen will also be a heart-warming place to gather. This four bedroom traditional home is filled with the latest in amenities such as the computer center adjacent to the master suite. The master suite on the first floor is your own private retreat featuring two walk-in closets and a master bath with twin vanities, a glass shower and a relaxing whirlpool bath. Upstairs finds generously sized bedrooms, zoned for privacy. A bonus room, perfect for a play area or game room completes the upstairs. < Optional Basement or Daylight Basement Foundation Available for Additional $250>
Specifications
Total 2973 sq ft
- Main: 2079
- Second: 894
- Third: 0
- Loft/Bonus: 0
- Basement: 0
- Garage: 678
Rooms
- Beds: 4
- Baths: 2
- 1/2 Bath: 1
- 3/4 Bath: 0
Ceiling Height
- Main: 9'0
- Second: 8'0
- Third:
- Loft/Bonus:
- Basement:
- Garage: 10'4
Details
- Exterior Walls: 2x4
- Garage Type: tripleGarage
- Width: 60'0
- Depth: 64'8
Roof
- Max Ridge Height: 30'10
- Comments: ()
- Primary Pitch: 12/12
- Secondary Pitch: 0/12

833–493–0942


