Plan No.310610
Design with Options
Optional Basement or Daylight Basement Foundation Available for Additional $250
Specifications
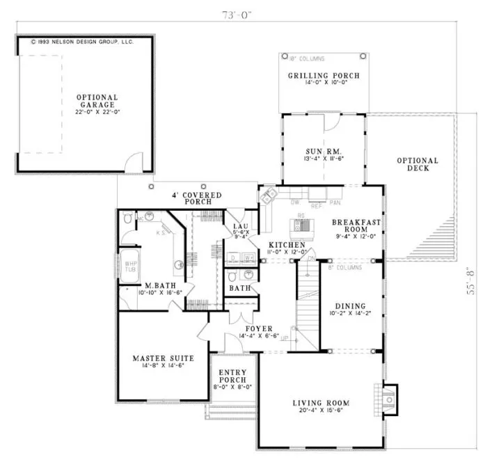
Total 2699 sq ft
- Main: 1768
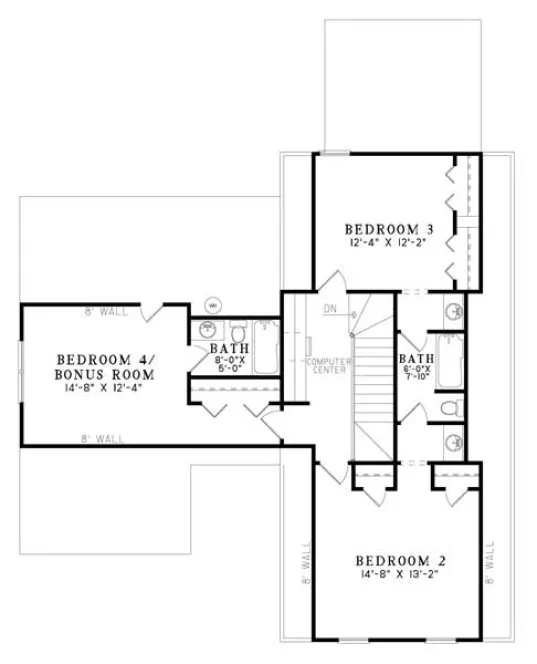
- Second: 931
- Third: 0
- Loft/Bonus: 0
- Basement: 0
- Garage: 513
Rooms
- Beds: 4
- Baths: 3
- 1/2 Bath: 1
- 3/4 Bath: 0
Ceiling Height
- Main: 8'0
- Second: 8'0
- Third:
- Loft/Bonus:
- Basement:
- Garage: 9'4
Details
- Exterior Walls: 2x4
- Garage Type: doubleGarage
- Width: 73'0
- Depth: 55'8
Roof
- Max Ridge Height: 28'4
- Comments: ()
- Primary Pitch: 12/12
- Secondary Pitch: 0/12
Add to Cart
Pricing
Full Rendering – westhomeplanners.com
MAIN Plan – westhomeplanners.com
SECOND Plan – westhomeplanners.com
[Back to Search Results]

833–493–0942

