Plan No.317410
Majestic Large Family Home
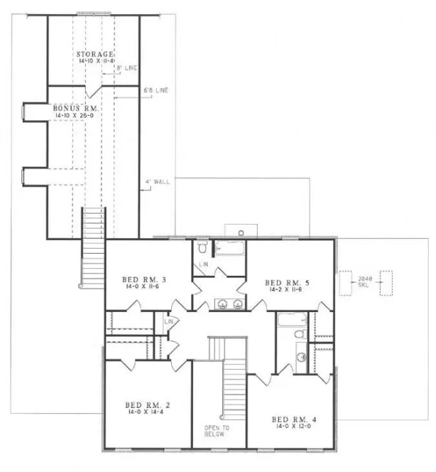
This majestic looking home is designed for the larger family. A beautiful built-in window seat aids in accommodating breakfast for everyone. You'll enjoy the convenient computer center which is arranged for optimum usage by the entire family. Enjoy the privacy of your master suite and bath with skylights above, increasing the amount of natural light. Upstairs, you'll have ample room for the children and all their belongings with four additional bedrooms and walk-in closet. Space is available for an optional bonus area that can serve as the family's game room.
Specifications
Total 3394 sq ft
- Main: 2202
- Second: 1192
- Third: 0
- Loft/Bonus: 0
- Basement: 0
- Garage: 834
Rooms
- Beds: 5
- Baths: 3
- 1/2 Bath: 1
- 3/4 Bath: 0
Ceiling Height
- Main: 9'0"
- Second: 8'0"
- Third:
- Loft/Bonus:
- Basement:
- Garage: 10'4"
Details
- Exterior Walls: 2x4
- Garage Type: tripleGarage
- Width: 68'8"
- Depth: 80'0"
Roof
- Max Ridge Height: 23'2"
- Comments: ()
- Primary Pitch: 8/12
- Secondary Pitch: 0/12
Add to Cart
Pricing
– westhomeplanners.com
– westhomeplanners.com
– westhomeplanners.com
– westhomeplanners.com
[Back to Search Results]

833–493–0942


