Plan No.314410
Full Covering Rear Porch
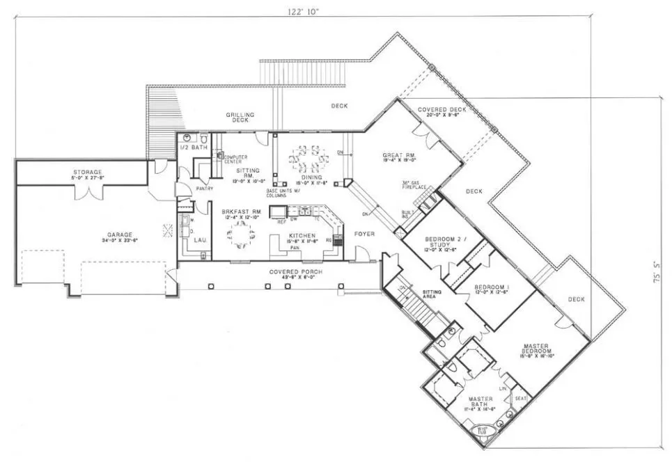
This home is perfect for entertaining guests and has a great lake view from all the main rooms. Step down into the great room and out onto the covered deck. This deck runs the entire length of the home and is perfect for grilling. The main level also features a sitting area and breakfast room. The large master bedroom features a corner whirlpool bath and 'his and her' walk-in closets. The kids will enjoy the computer center which is centrally located for easy monitoring. The downstairs features a game room, wet bar and guest room with full bath.
Specifications
Total 3659 sq ft
- Main: 2711
- Second: 0
- Third: 0
- Loft/Bonus: 0
- Basement: 0
- Garage: 799
Rooms
- Beds: 4
- Baths: 3
- 1/2 Bath: 1
- 3/4 Bath: 0
Ceiling Height
- Main: 9'0
- Second:
- Third:
- Loft/Bonus:
- Basement:
- Garage: 10'4
Details
- Exterior Walls: 2x4
- Garage Type: tripleGarage
- Width: 122'10
- Depth: 75'5
Roof
- Max Ridge Height: 24'0
- Comments: ()
- Primary Pitch: 10/12
- Secondary Pitch: 0/12
Add to Cart
Pricing
– westhomeplanners.com
– westhomeplanners.com
– westhomeplanners.com
– westhomeplanners.com
[Back to Search Results]

833–493–0942


