Plan No.312410
A Rocking Chair Awaits
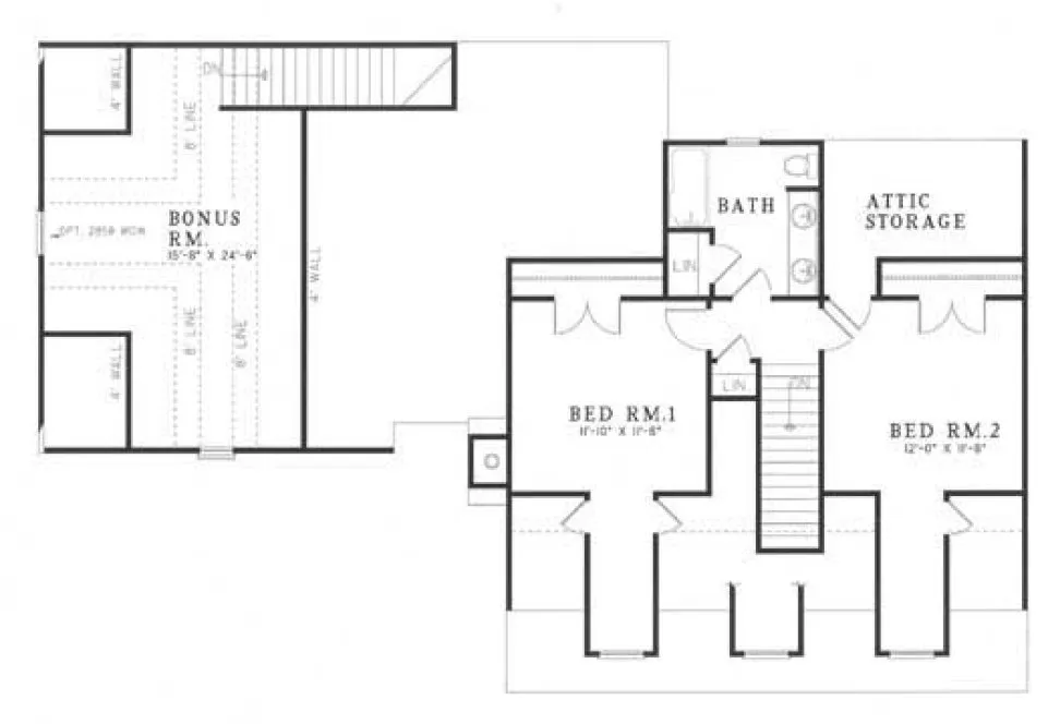
A rocking chair on the front porch of this home awaits you. Entering this home, you'll encounter the spacious great room with a romantic fireplace for special occasions or everyday winter enjoyment. Preparing meals for the family will be easy with fluid access to the open kitchen. At the end of the day, relax in your master bath with soothing whirlpool tub. On the upper floor, the children will discover innovative ways to utilize the nook created by their windows. Maximize the bonus area over the garage as a future game room or home office.
Specifications
Total 1783 sq ft
- Main: 1124
- Second: 659
- Third: 0
- Loft/Bonus: 0
- Basement: 0
- Garage: 515
Rooms
- Beds: 3
- Baths: 2
- 1/2 Bath: 1
- 3/4 Bath: 0
Ceiling Height
- Main: 8'0
- Second: 8'0
- Third:
- Loft/Bonus:
- Basement:
- Garage: 9'4
Details
- Exterior Walls: 2x4
- Garage Type: doubleGarage
- Width: 60'2
- Depth: 39'10
Roof
- Max Ridge Height: 25'7
- Comments: ()
- Primary Pitch: 12/12
- Secondary Pitch: 0/12
Add to Cart
Pricing
– westhomeplanners.com
– westhomeplanners.com
– westhomeplanners.com
– westhomeplanners.com
[Back to Search Results]

833–493–0942


