Plan No.318310
Home Theatre for All
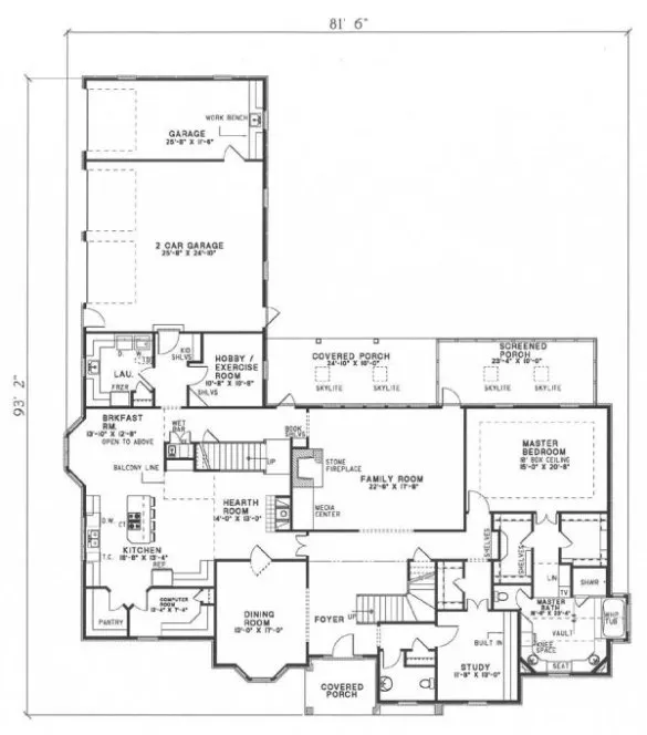
Picture raising your children and grandchildren in this traditional home. Begin each day in your own private exercise room, then on to a hearty breakfast in the breakfast room. After the children return from school, they can begin their homework in the private study or convenient computer room. End your day in your elegant and secluded master suite. Upstairs, you will find ample room for children and visiting relatives. Of course, everyone will enjoy home movies with popcorn and soda in the wonderful home theater. < Optional Basement or Daylight Basement Foundation Available for additional $250>
Specifications
Total 5548 sq ft
- Main: 3276
- Second: 2272
- Third: 0
- Loft/Bonus: 0
- Basement: 0
- Garage: 925
Rooms
- Beds: 5
- Baths: 4
- 1/2 Bath: 1
- 3/4 Bath: 0
Ceiling Height
- Main: 9'0
- Second: 9'0
- Third:
- Loft/Bonus:
- Basement:
- Garage: 10'4
Details
- Exterior Walls: 2x4
- Garage Type: tripleGarage
- Width: 81'6
- Depth: 93'2
Roof
- Max Ridge Height: 34'6
- Comments: ()
- Primary Pitch: 10/12
- Secondary Pitch: 0/12
Add to Cart
Pricing
– westhomeplanners.com
– westhomeplanners.com
– westhomeplanners.com
Artist's Rendering – westhomeplanners.com
Dining to Foyer – westhomeplanners.com
Family Room – westhomeplanners.com
Hearth Room – westhomeplanners.com
Kitchen from above – westhomeplanners.com
Elevations – westhomeplanners.com
[Back to Search Results]

833–493–0942







