Plan No.315310
Multi-Functional Games Room
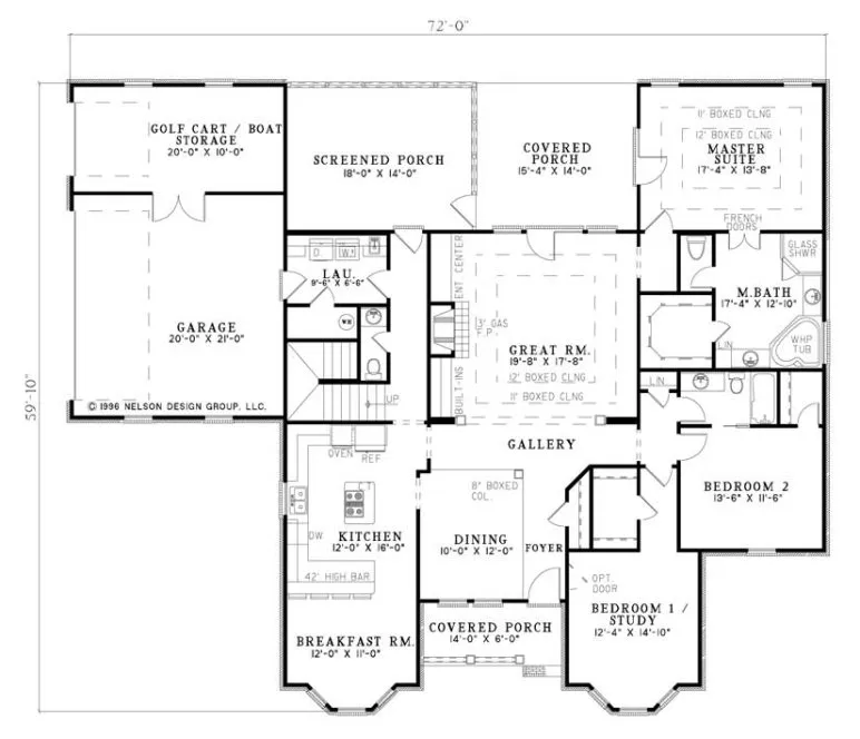
Imagine bright mornings as the coffee pot perks in the breakfast room of this home. Relax in the comfortable great room with a cup of hot cocoa or from the screened porch as you marvel at the days sunset. The children will find their walk-in closets ideal for storing their clothes as well as their toys and games. You can enjoy all the comforts available in your private master bath that include a quick morning shower or a long hot bath at night. Upstairs, the entire family will enjoy a multifunctional game room for hours of entertainment. < Optional Basement or Daylight Basement foundation available for additional $250>
Specifications
Total 2636 sq ft
- Main: 2266
- Second: 370
- Third: 0
- Loft/Bonus: 0
- Basement: 0
- Garage: 420
Rooms
- Beds: 3
- Baths: 2
- 1/2 Bath: 2
- 3/4 Bath: 0
Ceiling Height
- Main: 10'0"
- Second: 8'0"
- Third:
- Loft/Bonus:
- Basement:
- Garage: 11'4"
Details
- Exterior Walls: 2x4
- Garage Type: doubleGarage
- Width: 72'0"
- Depth: 59'10"
Roof
- Max Ridge Height: 25'1"
- Comments: ()
- Primary Pitch: 7/12
- Secondary Pitch: 5/12
Add to Cart
Pricing
– westhomeplanners.com
– westhomeplanners.com
– westhomeplanners.com
– westhomeplanners.com
[Back to Search Results]

833–493–0942


