Plan No.314310
Southern Sunroom
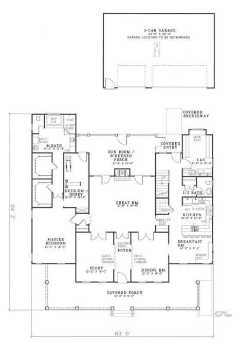
A southern traditional style home with handicap accessible features describe this home. Imagine welcoming friends and family on the full length front porch with beautiful columns. Inside, the feeling of grandeur is evident with French doors from the front rooms to the spacious great room, with computer center nearby. A charming wrap around window seat in the breakfast room provides conversation over coffee. Your master suite features a personal exercise room. Upstairs, you'll discover the children's bedrooms and optional media room. < Garage Included in house plans However, locatiom to be determined>
Specifications
Total 3706 sq ft
- Main: 2473
- Second: 1233
- Third: 0
- Loft/Bonus: 0
- Basement: 0
- Garage: 872
Rooms
- Beds: 3
- Baths: 2
- 1/2 Bath: 1
- 3/4 Bath: 0
Ceiling Height
- Main: 9'0"
- Second: 9'0"
- Third:
- Loft/Bonus:
- Basement:
- Garage: 10'4"
Details
- Exterior Walls: 2x4
- Garage Type: tripleGarage
- Width: 60'0
- Depth: 64'2
Roof
- Max Ridge Height: 33'2
- Comments: ()
- Primary Pitch: 10/12
- Secondary Pitch: 0/12
Add to Cart
Pricing
– westhomeplanners.com
– westhomeplanners.com
– westhomeplanners.com
– westhomeplanners.com
[Back to Search Results]

833–493–0942


