Plan No.312310
Sunny Breakfast Bay
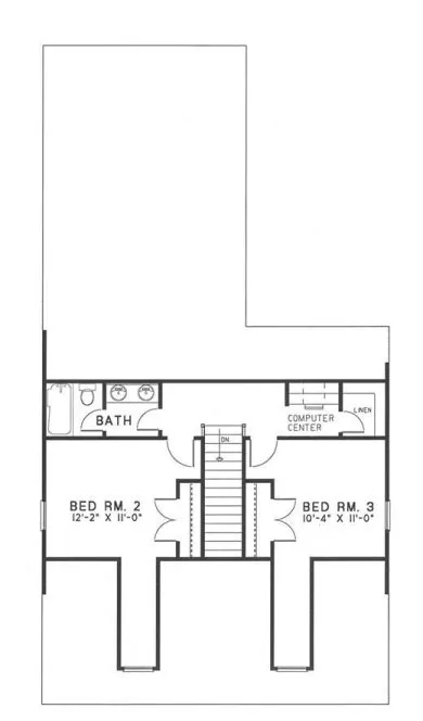
An elegant covered porch, decorative columns and dormers accent the simple yet stylish exterior on this home. A sunny site for casual dining awaits you in the breakfast bay. The elegant master suite includes his and her walk-in closets, a dual sink vanity and a whirlpool tub with a boxed window for ample lighting. Two bedrooms on opposite sides of the upper floor provide privacy while allowing access for all to a handy computer center.
Specifications
Total 1541 sq ft
- Main: 990
- Second: 551
- Third: 0
- Loft/Bonus: 0
- Basement: 0
- Garage: 367
Rooms
- Beds: 3
- Baths: 2
- 1/2 Bath: 0
- 3/4 Bath: 0
Ceiling Height
- Main: 9'0"
- Second: 8'0"
- Third:
- Loft/Bonus:
- Basement:
- Garage: 10'4"
Details
- Exterior Walls: 2x4
- Garage Type: doubleGarage
- Width: 34'8"
- Depth: 61'10"
Roof
- Max Ridge Height: 26'7"
- Comments: ()
- Primary Pitch: 10/12
- Secondary Pitch: 0/12
Add to Cart
Pricing
– westhomeplanners.com
– westhomeplanners.com
– westhomeplanners.com
– westhomeplanners.com
[Back to Search Results]

833–493–0942


