Plan No.120882
Award Winning Bungalow
Optional Crawlspace or Slab foundation available for an additional $500. Maximum Ridge Height measured from First Floor Level to Peak.
Specifications
Total 2880 sq ft
- Main: 1294
- Second: 1220
- Third: 0
- Loft/Bonus: 366
- Basement: 0
- Garage: 528
Rooms
- Beds: 4
- Baths: 3
- 1/2 Bath: 1
- 3/4 Bath: 0
Ceiling Height
- Main: 10'0
- Second: 9'0
- Third:
- Loft/Bonus:
- Basement:
- Garage: 11'4
Details
- Exterior Walls: 2x4
- Garage Type: doubleGarage
- Width: 38'0
- Depth: 76'0
Roof
- Max Ridge Height: 29'4
- Comments: (Main Floor to Peak)
- Primary Pitch: 12/12
- Secondary Pitch: 4/12
Add to Cart
Pricing
Full Rendering – westhomeplanners.com
MAIN Plan – westhomeplanners.com
SECOND Plan – westhomeplanners.com
BASEMENT Plan – westhomeplanners.com
Artist's Rendering – westhomeplanners.com
Front Photo – westhomeplanners.com
Front Photo – westhomeplanners.com
Front Photo – westhomeplanners.com
REAR Elevation – westhomeplanners.com
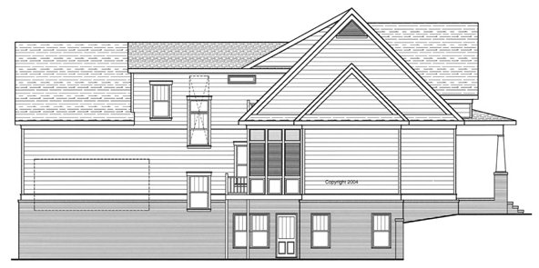
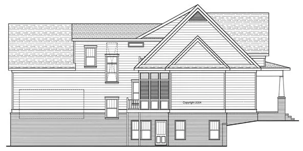
LEFT Elevation – westhomeplanners.com
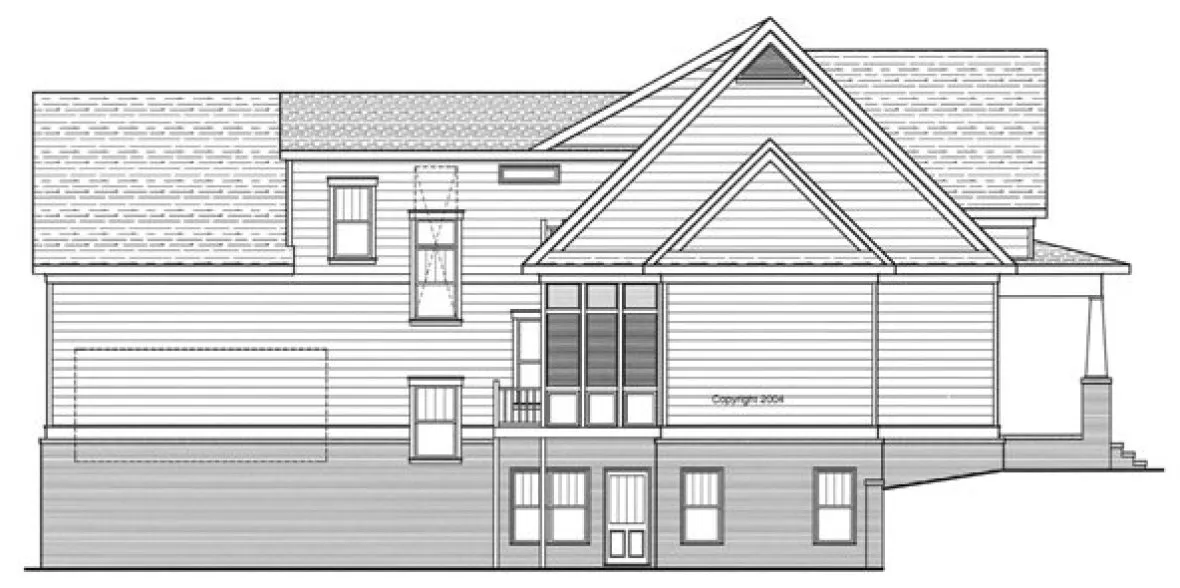
RIGHT Elevation – westhomeplanners.com
[Back to Search Results]

833–493–0942









