Plan No.311000
Impressive Split Bedroom Design
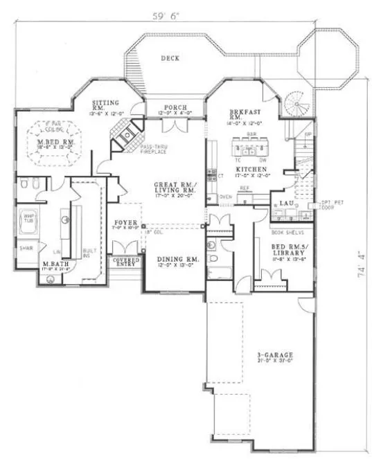
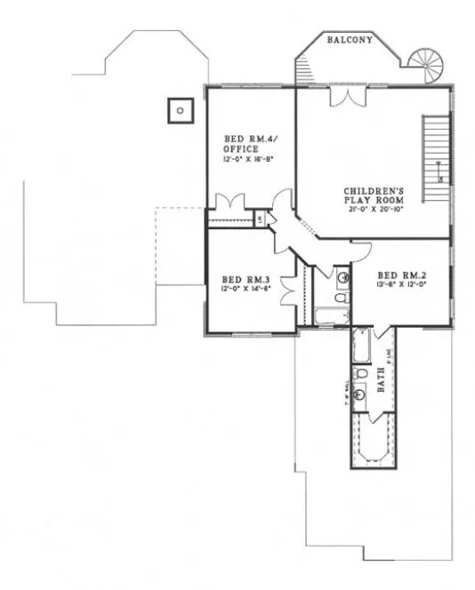
An impressive split bedroom design makes this home a dream come true. You'll enjoy the pass-through fireplace from the sitting room in your secluded master suite. A luxurious master bath has an enormous walk-in closet, which is every woman's fantasy. The kids will enjoy doing their research projects in the library conveniently located nearby. Entertaining with family and friends becomes a ritual in the spacious great room with fireplace to add warmth. Traveling upstairs, the children will find all the room they need with three bedrooms and a large playroom. Available optional foundations include Basement $250.00 and Daylight/Walk-out Basement $250.00.
Specifications
Total 3437 sq ft
- Main: 2184
- Second: 1253
- Third: 0
- Loft/Bonus: 0
- Basement: 2184
- Garage: 0
Rooms
- Beds: 5
- Baths: 4
- 1/2 Bath: 0
- 3/4 Bath: 0
Ceiling Height
- Main: 10'0
- Second: 9'0
- Third:
- Loft/Bonus:
- Basement: 8'0
- Garage:
Details
- Exterior Walls: 2x4
- Garage Type: tripleGarage
- Width: 59'6
- Depth: 74'4
Roof
- Max Ridge Height: 37'6
- Comments: ()
- Primary Pitch: 12/12
- Secondary Pitch: 0/12
Add to Cart
Pricing
– westhomeplanners.com
– westhomeplanners.com
– westhomeplanners.com
– westhomeplanners.com
[Back to Search Results]

833–493–0942


